Koulukatu 5 B17, 2h+kk, kerros 3. Siisti ja hyvin suunniteltu kaksio peruskorjatussa asuntoyhtiössä hyvällä sijainnilla lähellä kaikkia palveluja! Peruskorjaus tehty 2008 sekä uudet ikkunat 2017. Mahdollisuus ostaa lämmin autotalli, 15.000 .
Perustiedot
                                    - Kohdenumero
- 9959399
- Sijainti
- Keskusta
- Koulukatu 5 B 17
- 68600 Pietarsaari
 
- Tyyppi
- Kerrostalo
- Omistusmuoto
- Omistusasunto
- Huoneistoselitelmä
- 2 h + kk + kph
- Huoneita
- Kaksio
- Asuinpinta-ala
- 49,5 m2
- Lisätietoja pinta-alasta
- 2 h+kk+kph
 
- Kerros
- 3/4
- Hissi
- Ei
 
- Rakennusvuosi
- 1971
- Vapautuminen
- Sopimuksen mukaan
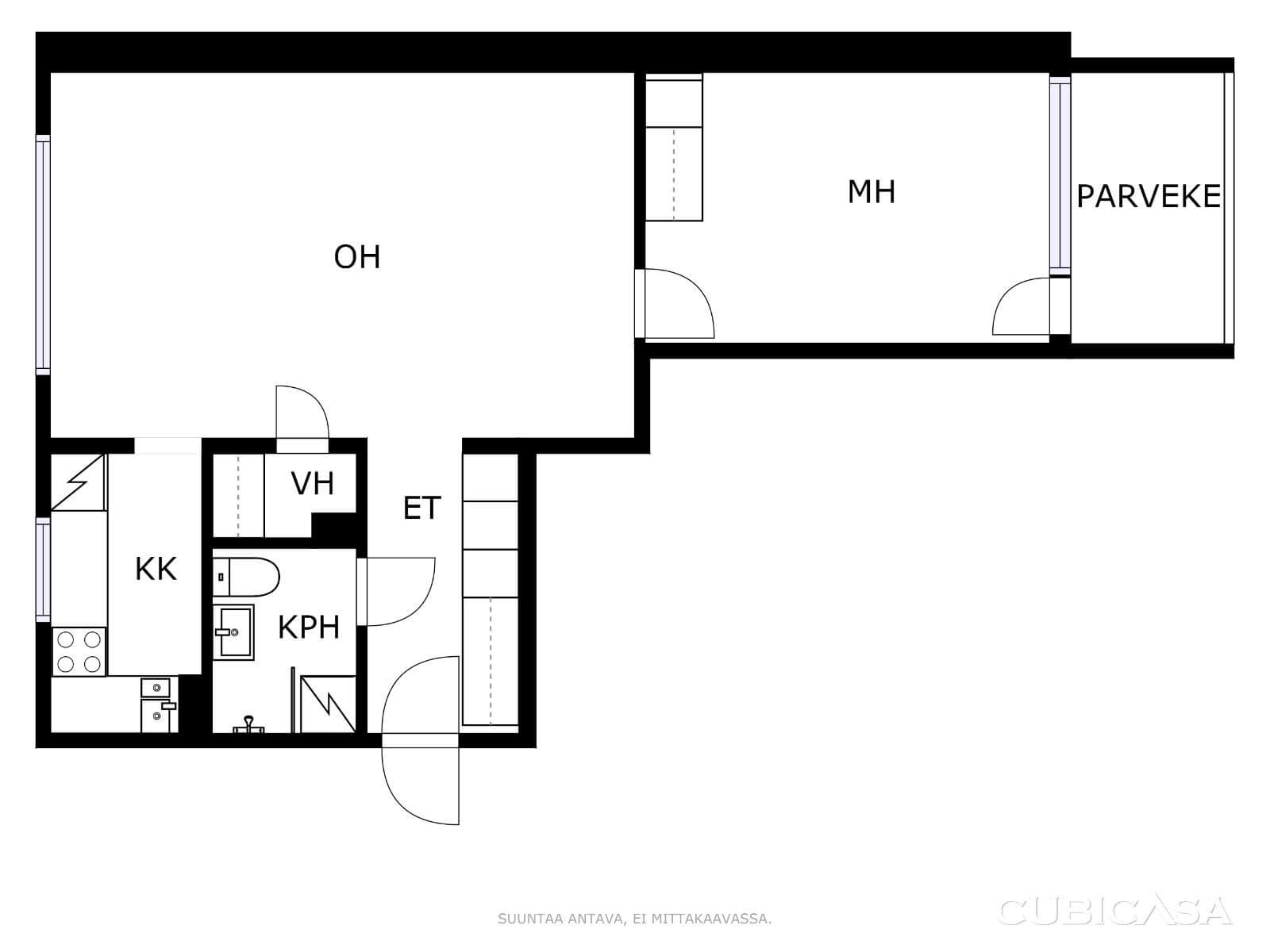
Pohjakuva
                                     
		                                        Hinta ja kustannukset
                                    - Velaton hinta
- 72 270 €
- (Myyntihinta 55 020 € + Velkaosuus 17 250 €)
 
- Myyntihinta
- 55 020 €
- Velkaosuus
- 17 250 €
- Neliöhinta
- 1 460 € / m2
- Vastike
- 331,65 € / kk
- (Huoltovastike 193,05 € / kk + Rahoitusvastike 138,60 € / kk)
 
- Muut maksut
- Vesiennakko 25 €/hlö/kk
 
Lisätiedot
                                    - Parveke
- Ilmansuunta: Etelään
 
- Yleiskunto
- Hyvä
- Lämmitysjärjestelmän kuvaus
- Kaukolämpö
Tilat ja materiaalit
                                    - Rakennus- ja pintamateriaalit
- Pääasiallinen rakennusmateriaali: Betoni
 
- Katto
- Kattotyyppi: Harjakatto
- Kattomateriaalit: Pelti
 
Muut tiedot
                                    - Näkymät
- Etelään
Taloyhtiö
                                    - Taloyhtiön nimi
- Bostads Ab Jakobstads Skolgatan 5 Asunto Oy
- Isännöitsijä
- Retta / Timo Kumpu
- Huolto
- JS-Kiinteistöpalvelu Oy
- Taloyhtiöön kuuluu
- Sauna, väestönsuoja, Huoneistokohtaiset varastot
- Taloyhtiön autopaikat
- Autotallipaikkoja: 2
 
- Liikehuoneistoja
- 3
- Tontin koko
- 1 784 m2
- Tontin omistus
- Oma
- Tehdyt remontit
- 2008 Peruskorjaus: Julkisivut kunnostettu, parvekkeiden betonisaumat uusittu, keittiöt uusittu. Kylpyhuoneet uusittu ja varustettu mukavuuslattialämmityksellä. Käyttövesi- ja viemäriverkosto, tele- ja antenniverkko, sähköverkko uusittu. Huoneistojen kaikki pinnat kunnostettu. Veden- ja lämmityksen mittausjärjestelmä, lämmönvaihdin uusittu. Ilmanvaihto parannettu. Rakennettu kaksi pientä liiketilaa. Piha-alue ja jätehuoltopisteet.
 2013 Vesikatto Pprotan-pinnoite, 25 v käyttöikä.
 2017 Uudet ikkunat ja parvekeovet. Ilmanvaihdon puhdistus.
- Tulevat remontit
- 5-vuoden kunnossapitosuunnitelma:
 2018 Kaksi ikkunaa uusitaan liikehuon. 1. Rappukäytäväparvekkeiden pesu ja maalaus.
 2019 Väestonsuojien koeponnistus. Asvaltin rajan juottaminen.
 2020 Salaojien kuvaus ja huuhtelu.
 2021 Elastisten saumojen uusinta.
 2018-2022 Vesikalusteiden uusimista tarpeen mukaan. Sähköjärjestelmän huoltoa tarpeen mukaan
- Energialuokka
- F2013
                                Sijainti
                            
                             
  
    
                            Ota yhteyttä
                        
                        
 
                         
                	