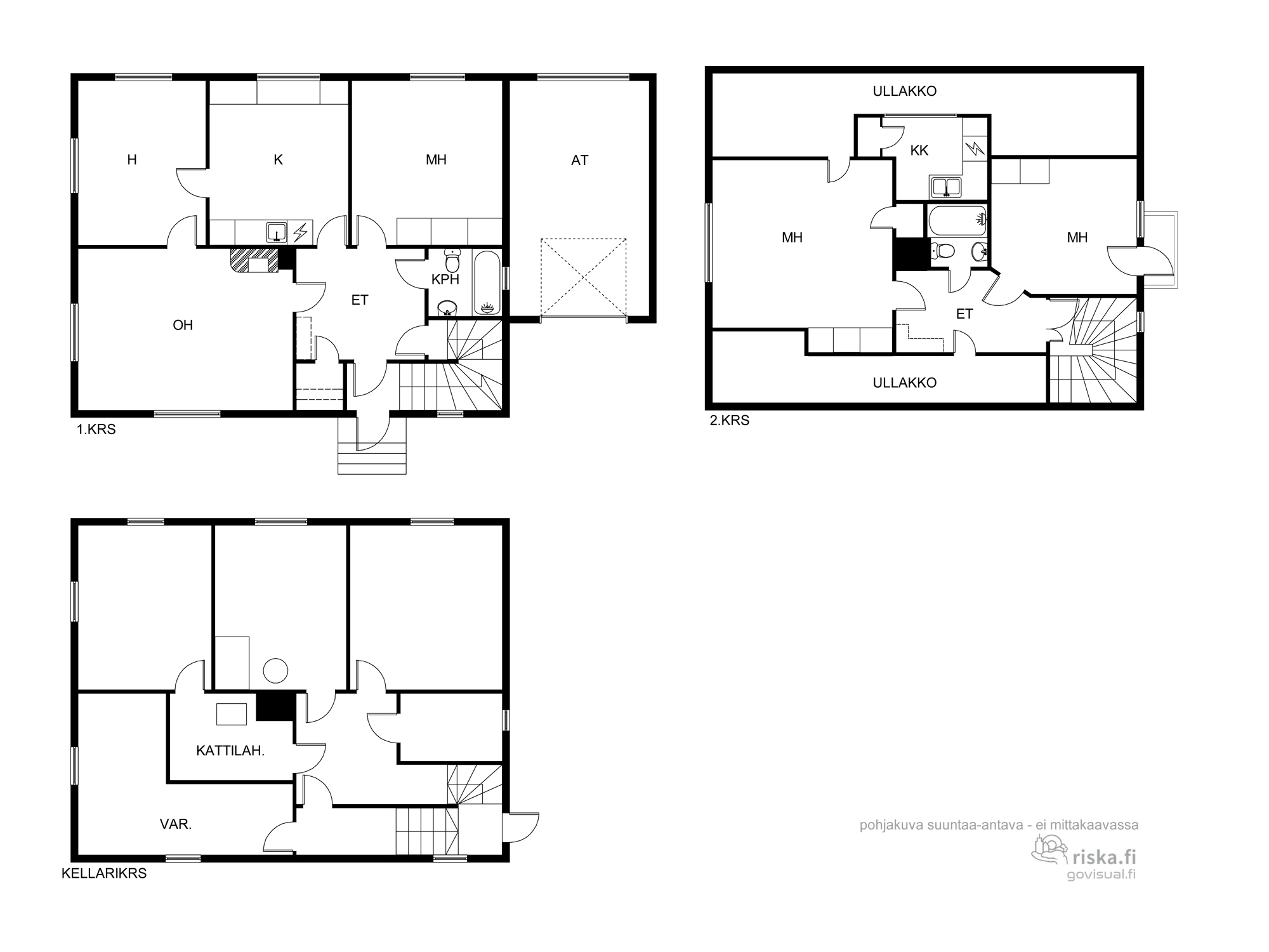
Tilava ja kodikas omakotitalo, rakennettu vuonna 1952. Alakerrassa noin 80 m²: 3 h + keittiö + kylpyhuone, aula. Yläkerrassa noin 47 m²: 2 h + keittokomero, kylpyhuone. Kellarikerros noin 80 m²: sauna, pesuhuone, harrastetila, varasto ja tekninen tila. Autotalli noin 21 m².

Tontti 945 m² hyvällä sijainnilla lähellä keskustaa. Edullinen talo, jossa mm. kaukolämpö ja osittain uusitut ikkunat, robottiruohonleikkuri ym.

Rymligt och hemtrevligt eh-hus byggt 1952 omf. 3r+kök+badrum, hall i nedre vån ca 80 m2 + 2r+kokvrå, badrum på övre vån ca 47 m2. Källarvåning ca 80 m2 omf. bastu, tvättrum, hobbyrum, förråd och tekniskt rum. Garage ca 21 m2.

Tomt 945 m2 på bra läge nära centrum. Förmånligt hus med bl.a. fjärrvärme och delvis förnyade fönster, robotgräsklippare m.m.

Perustiedot
Kohdenumero
21223820
Sijainti
  • Länsinummi
  • Tengströminkatu 51
  • 68620 Pietarsaari
Tyyppi
Omakotitalo
Huoneistoselitelmä
3 h + k + 2 h + kk + kellari ja autotalli
Huoneita
5 h
Asuinpinta-ala
125 m2
Kokonaispinta-ala
205 m2
Lisätietoja pinta-alasta
  • 3 h+k+kph+eteinen n. 80 m2 + 2 h+kk+kph n. 47 m2 + kellarikerros, jossa sauna, pesuhuone, askarteluhuone, varasto ja tekn.tila. Autotalli n. 21 m2.
Rakennusvuosi
1952
Vapautuminen
Sopimuksen mukaan
Pohjakuva
Pohjakuva
Hinta ja kustannukset
Myyntihinta
49 800 €
Neliöhinta
398,40 € / m2
Lisätiedot
Sauna
  • Oma sauna
Yleiskunto
Ei luokiteltu
Lisätietoja kunnosta
  • Myydään kunnostuskohteena
Lämmitysjärjestelmän kuvaus
Kaukolämpö, ilmalämpöpumppu
Vesihuollon kuvaus
Kunnan
Viemäri
Kunnan
Sähköliittymä siirtyy
Kyllä
Tilat ja materiaalit
Rakennus- ja pintamateriaalit
  • Pääasiallinen rakennusmateriaali: Puu
Katto
  • Kattotyyppi: Harjakatto
  • Kattomateriaalit: Pelti
Keittiön kuvaus
  • Lattiamateriaalit: Muovi
  • Seinämateriaalit: Tapetti
  • Liesi: Sähköliesi
  • Varusteet: Jääkaappi/pakastin, Liesituuletin, astianpesukone
Kylpyhuoneen kuvaus
  • Lattiamateriaalit: Muovi
  • Seinämateriaalit: Muovi
  • Varusteet: Pesukoneliitäntä, suihku, peilikaappi, kiinteät valaisimet
Saunan kuvaus
  • Lattiamateriaalit: Betoni
  • Seinämateriaalit: Puu
Olohuoneen kuvaus
  • Lattiamateriaalit: Muovi
  • Seinämateriaalit: Tapetti
Makuuhuoneiden kuvaus
  • Lattiamateriaalit: Muovi
  • Seinämateriaalit: Tapetti
Tontti
Tontin omistus
Vuokrattu
Tontin vuokra
537,03 € / vuosi
Tontin vuokraaja
Pietarsaaren Kaupunki
Kiinteistötunnus
598-1-23-120-L1
Tontin koko
945 m2
Sijainti
Näytä Google Maps palvelussa
Ota yhteyttä

    Lomakkeella voit kätevästi pyytää lisätietoja tästä kohteesta.