Valoisa ja raikas rivitaloasunto, 80 m², kaukolämpö lämmitysjärjestelmänä.

Asunnossa on kaksi makuuhuonetta ja tilava olohuone, josta on käynti terassille ja takapihalle. Keittiö on remontoitu vuonna 2018 ja kylpyhuoneen kalusteet on uusittu vuonna 2021. Syksyllä 2025 on tehty pintaremonttia, mm. osittain uusittu lattiamateriaaleja.

Oma autotalli ja varasto kuuluvat kokonaisuuteen. Hyvin hoidettu taloyhtiö, jossa katto on hiljattain uusittu.

Edullinen ja tyylikäs asunto! Ota yhteyttä ja varaa esittelyaikasi!

Ljus och fräsch radhuslägenhet på 80m2 med fjärrvärme som uppvärmningssystem.

Bostaden har två sovrum och ett rymligt vardagsrum, varifrån man kommer ut till terrassen och bakgården. Köket har blivit renoverat 2018 och i badrummet har man förnyat inredningen år 2021 och hösten 2025 har ytrenoveringar utförts med bla delvist förnyade golvbeläggningarna.

Eget garage och förråd finns. Välskött husbolag där man nyligen förnyat taket.

Förmånlig, snygg lägenhet! Ta kontakt och boka din visning!

Perustiedot
Kohdenumero
20042143
Sijainti
  • Permo
  • Renginpolku 1 A 3
  • 68600 Pietarsaari
Tyyppi
Rivitalo
Omistusmuoto
Omistusasunto
Huoneistoselitelmä
3 h + k + kph
Huoneita
Kolmio
Asuinpinta-ala
80 m2
Kerrokset
1
Rakennusvuosi
1973
Vapautuminen
Heti
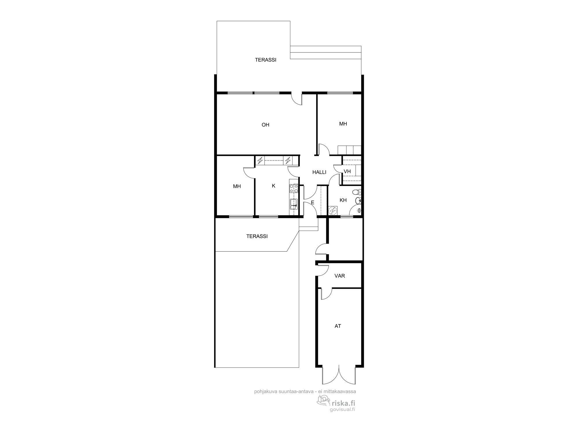
Pohjakuva
Pohjakuva
Hinta ja kustannukset
Velaton hinta
  • 79 500 €
  • (Myyntihinta 79 500 € + Velkaosuus 0 €)
Myyntihinta
79 500 €
Velkaosuus
0 €
Neliöhinta
993,75 € / m2
Vastike
  • 335 € / kk
  • (Huoltovastike 335 € / kk)
Lisätiedot
Kohteeseen kuuluu
Kaapeli-tv
Yleiskunto
Ei luokiteltu
Lisätietoja kunnosta
  • 2018 Keittiö uusittu 2021 Suihkukaappi, peilikaappi ja pesuallas uusittu 2022 Terassi 2025 Pintaremontoitu
Lämmitysjärjestelmän kuvaus
Kaukolämpö
Tilat ja materiaalit
Rakennus- ja pintamateriaalit
  • Pääasiallinen rakennusmateriaali: Puu
Katto
  • Kattotyyppi: Harjakatto
  • Kattomateriaalit: Pelti
Keittiön kuvaus
  • 2018
  • Lattiamateriaalit: Muovi
  • Seinämateriaalit: Tapetti
  • Liesi: Keraaminen liesi, erillisuuni
  • Varusteet: Jääkaappi/pakastin, Astianpesukone, kiinteät valaisimet, liesituuletin / hormi
Kylpyhuoneen kuvaus
  • Lattiamateriaalit: Laatta
  • Seinämateriaalit: Kaakeli
  • Varusteet: Suihkukaappi, pesukoneliitäntä, wc-istuin, peilikaappi, kiinteät valaisimet, kylpyhuonekaapisto
Olohuoneen kuvaus
  • Lattiamateriaalit: Vinyyli
  • Seinämateriaalit: Tapetti
Makuuhuoneiden kuvaus
  • Lattiamateriaalit: Laminaatti
  • Seinämateriaalit: Tapetti
Muut tiedot
Näkymät
Etupuolen terassi luoteeseen päin, takaterassi kaakkoon päin.
Taloyhtiö
Taloyhtiön nimi
Bostads Ab Permokröken Asunto Oy
Isännöitsijä
Retta Isännöinti Oy, Jesse Rautakoski, Isokatu, 68600 Pietarsaari. 010 2288190, jesse.rautakoski@retta.fi
Taloyhtiöön kuuluu
Sauna, talopesula
Taloyhtiön autopaikat
  • Autotallipaikkoja: 10
Tontin koko
5 685 m2
Tontin omistus
Oma
Tehdyt remontit
1989 Katto korjattu
2000 Uudet ikkunat ja takaovet
2004 Autotallien kattojen uusiminen
2005 Rakennusten päätyjen kunnostus
2007 Kaapeliantennijärjestelmän uusiminen
2016 Lämpöyhtiö PermoVärme on uusinut lämpökeskuksen ja taloyhtiön välisen lämpökanavan
2019 Julkisivun maalaus
2023 Kattojen uusiminen harjakatoiksi sekä yläpohjan lisäeristys
Tulevat remontit
5-vuoden kunnossapitosuunnitelma 2024-2028:
Ryömintätilojen tarkistus
Käyttövesiputkien tarkistus
Palovaroittimet
Jätekatoksen rakentaminen
Energialuokka
E2018
Sijainti
Näytä Google Maps palvelussa
Ota yhteyttä

    Lomakkeella voit kätevästi pyytää lisätietoja tästä kohteesta.