Tervetuloa moderniin ja mukavaan kotiin Pietarsaaren keskustassa!

Tämä valoisa ja hyvin suunniteltu kolmio tarjoaa avaran ja kutsuvan pohjaratkaisun, jossa keittiö, olohuone ja ruokailutila muodostavat viihtyisän kokonaisuuden. Asunnosta avautuu kaunis näkymä Puistikolle, ja suuri länteen suuntautuva lasitettu terassiparveke tarjoaa erinomaisen paikan nauttia niin rentoutumisesta kuin yhdessäolosta ympäri vuoden. Asunnossa on oma sauna, ja lasitetun terassiparvekkeen lisäksi molemmissa makuuhuoneissa on ranskalaiset parvekkeet. Asunnossa on lisäksi ilmalämpöpumppu, joka tarjoaa tehokasta viilennystä lämpiminä päivinä.

Tässä modernissa, vuonna 2013 valmistuneessa hissitalossa asumismukavuus on pidetty korkealla tasolla; pihapiiri on hyvin hoidettu ja porraskäytävä edustava. Lisämukavuutena on mahdollisuus omaan autohallipaikkaan sekä varastoon. Talon asukkaiden käytössä on myös pieni allasosasto, mikä tuo arkeen ripauksen ylellisyyttä ja lisää asumisviihtyvyyttä.

Keskeisen sijaintinsa, modernin tason ja kauniiden näkymien ansiosta tämä koti sopii sinulle, joka arvostat laatua ja haluat asua lähellä kaikkia Pietarsaaren keskustan palveluja.

Välkommen till ett modernt och bekvämt boende mitt i centrala Jakobstad!

Denna ljusa och välplanerade trerummare erbjuder en öppen och inbjudande planlösning där kök, vardagsrum och matplats smälter samman till ett trivsamt helhetsutrymme. Från bostaden har du en vacker utsikt mot Esplanaden och dessutom en stor inglasad terrassbalkong i västerläge – en perfekt plats att njuta av både avkoppling och umgänge året runt. Lägenheten är utrustad med egen bastu och förutom den inglasade terrassbalkongen finns även franska balkonger i båda sovrummen. I lägenheten finns även en luftvärmepump som ger effektiv kylning under varma dagar.

I detta moderna hisshus, färdigställt 2013, har boendekomforten hållits på hög nivå med en välskött utemiljö och ett representativt trapphus. Som extra förmån finns möjlighet till egen bilhallplats med förråd. Huset erbjuder dessutom tillgång till en liten pool, vilket ger ett inslag av vardagslyx och gör boendet ännu mer attraktivt.

Med sitt centrala läge, moderna standard och den fina utsikten är detta ett hem som passar dig som söker både kvalitet och närhet till allt Jakobstads centrum har att erbjuda.

Perustiedot
Kohdenumero
21390039
Sijainti
  • Keskusta
  • Herrholminkatu 22 A 6
  • 68600 Pietarsaari
Tyyppi
Kerrostalo
Omistusmuoto
Omistusasunto
Huoneistoselitelmä
3 h + k + ruok.tila + kph/sauna
Huoneita
Kolmio
Asuinpinta-ala
87,5 m2
Kerros
2/4
Hissi
  • Kyllä
Rakennusvuosi
2013
Vapautuminen
Sopimuksen mukaan
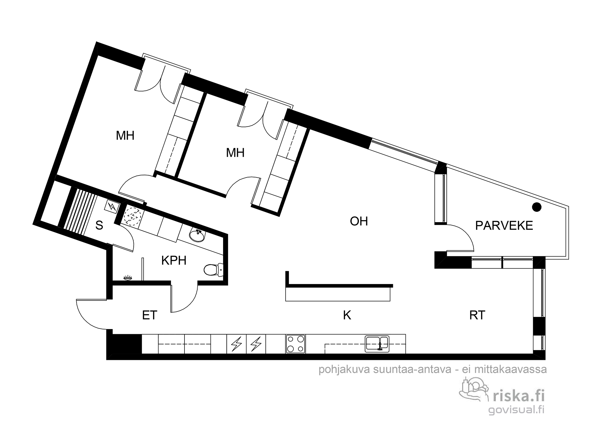
Pohjakuva
Pohjakuva
Hinta ja kustannukset
Velaton hinta
  • 289 000 €
  • (Myyntihinta 289 000 € + Velkaosuus 0 €)
Myyntihinta
289 000 €
Velkaosuus
0 €
Neliöhinta
3 302,86 € / m2
Vastike
  • 371,88 € / kk
  • (Huoltovastike 371,88 € / kk)
Muut maksut
  • Vesiennakko 20 €/hlö/kk

    AUTOHALLIPAIKKA 28.000 €
    Autohallipaikka-vastike 24,14 €/kk
Lisätiedot
Sauna
  • Oma sauna
Parveke
  • Ilmansuunta: Pohjoiseen, Länteen
  • Parveketyyppi: Lasitettu, ranskalainen
Kohteeseen kuuluu
Kaapeli-tv
Yleiskunto
Hyvä
Lämmitysjärjestelmän kuvaus
Kaukolämpö
Tilat ja materiaalit
Rakennus- ja pintamateriaalit
  • Pääasiallinen rakennusmateriaali: Betoni
Katto
  • Kattomateriaalit: Pelti
Keittiön kuvaus
  • Rosteri-keittiökoneet
  • Lattiamateriaalit: Parketti
  • Seinämateriaalit: Maalattu
  • Liesi: Keraaminen liesi
  • Varusteet: Jääkaappi, pakastekaappi, Liesituuletin, mikroaaltouuni, astianpesukone, kiinteät valaisimet
Kylpyhuoneen kuvaus
  • Lattiamateriaalit: Laatta
  • Seinämateriaalit: Kaakeli
  • Varusteet: Suihkuseinä, pesukoneliitäntä, wc-istuin, suihku, peilikaappi, peili, kiinteät valaisimet, kylpyhuonekaapisto
Saunan kuvaus
  • Lattiamateriaalit: Laatta
  • Seinämateriaalit: Puu
Olohuoneen kuvaus
  • Lattiamateriaalit: Parketti
  • Seinämateriaalit: Maalattu
Makuuhuoneiden kuvaus
  • Lattiamateriaalit: Parketti
  • Seinämateriaalit: Maalattu
Muut tiedot
Näkymät
Makuuhuoneiden ikkunat länteen. Olohuone/keittiö/ruokailutila länteen/pohjoiseen.
Taloyhtiö
Taloyhtiön nimi
Asunto Oy Pietarsaaren Villa Sibelius Bostads Ab
Isännöitsijä
JBB / Mikaela Smedinga
Huolto
JS Kiinteistöpalvelu Oy
Taloyhtiöön kuuluu
Uima-allas, kuivaushuone, jäähdytetty kellari, urheiluvälinevarasto, väestönsuoja, huoneistokohtaiset varastot
Tontin koko
903 m2
Tontin omistus
Oma
Tehdyt remontit
2015 LPA-alueen asvaltointi
2015-2016 Ostettu osa LPA-tontista
2016 Puomien asentaminen
2016 Moottorilämmittimien asentaminen
2023 Palovaroittimet uusittu
2025 Ilmastoinnin puhdistus, uusittu ilmastointisuodattimet
Tulevat remontit
5-vuoden kunnossapitosuunnitelma 2026-2030:
2025 SPA-osasto
2027 Sähköautojen lataus
Energialuokka
B2018
Sijainti
Näytä Google Maps palvelussa
Ota yhteyttä

    Lomakkeella voit kätevästi pyytää lisätietoja tästä kohteesta.