Hyvin pidetty ja remontoitu omakotitalo houkuttelevalla ja rauhallisella sijainnilla, suurella 1670 m² omalla tontilla. Talo rakennettu 1968/69, käsittäen 3 h + keittiö + wc + takkahuone + sauna/pesuhuone, lämmin varasto ja kylmä varasto sekä autokatos, noin 100/140 m².

Vuonna 2009 tehty peruskorjaus/uusittu takkahuone, sauna/pesuhuone sekä lämmin varasto vesikiertoisella lattialämmityksellä. Vesi- ja viemärijärjestelmä uusittu, julkisivulaudat vaihdettu ja maalattu, sadevesikaivot asennettu sekä uudet rännit. Valokuituliittymä.

Kodikas ja hyvin hoidettu omakotitalo lähellä keskustaa ja luontoa.

Ota yhteyttä ja varaa esittelyaikasi!

Välhållet och renoverat egnahemshus på attraktivt och lugnt läge med stor, 1670 m2 egen tomt. Huset byggt 1968/69 omfattande 3 r+kök+wc+spisrum+bastu/bdr, varmförråd och kallförråd samt biltak, ca 100/140 m2.

2009 grundrenoverat/förnyat spisrum, bastu/bdr samt varmförråd med vattenburen golvvärme. Vatten- och avlopp förnyat, fasadbrädor förnyade och målade, regnvattenbrunnar installerade samt nya rännor. Fiberanslutning.

Hemtrevligt och välskött egnahemshus nära centrum och naturen.

Ta kontakt och boka din visning!

Perustiedot
Kohdenumero
21882976
Sijainti
  • Uuspelto
  • Pohjoispellontie 18
  • 68620 Pietarsaari
Tyyppi
Omakotitalo
Huoneistoselitelmä
3 h + k + wc + takkah + kph/s + varastot + autotalli
Huoneita
Kolmio
Asuinpinta-ala
100 m2
Kokonaispinta-ala
140 m2
Lisätietoja pinta-alasta
  • 3 h+k+wc+takkahuone+sauna/kph, lämmin varasto ja kylmä varasto + autotalli n 100/140 m2
Rakennusvuosi
1969
Vapautuminen
Sopimuksen mukaan
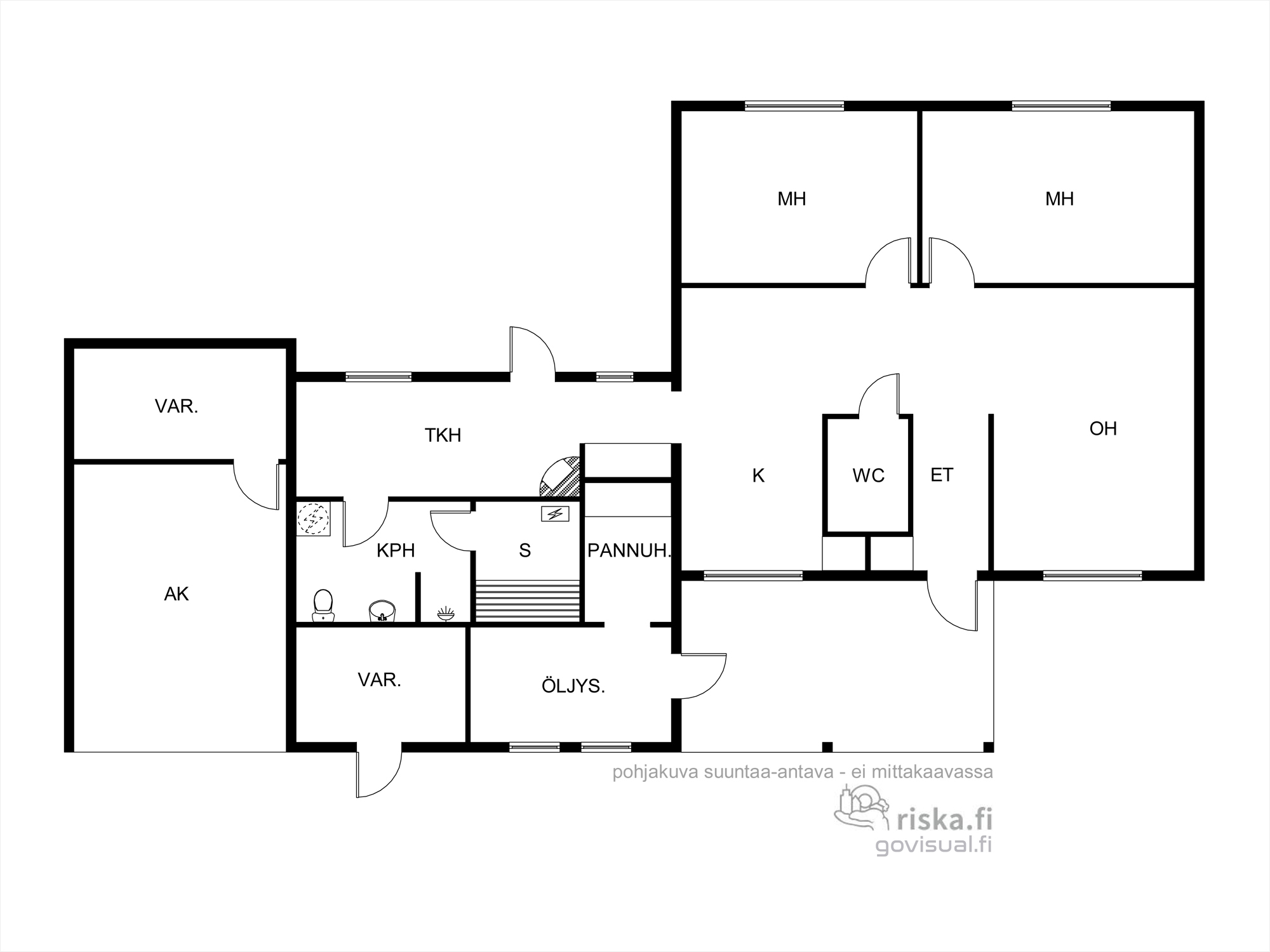
Pohjakuva
Pohjakuva
Hinta ja kustannukset
Myyntihinta
125 000 €
Neliöhinta
1 250 € / m2
Kiinteistövero
247 €/v
Muut maksut
  • Öljynkulutus n 2.000 l/v
Lisätiedot
Sauna
  • Oma sauna
Yleiskunto
Ei luokiteltu
Tehdyt remontit
2009 peruskunnostettu/uusittu takkahuone, sauna/kph sekä lämmin varasto, joissa vesikiertoinen lattialämmitys
Vesi- ja viemäröinti uusittu , ulkolaudoitus uusittu ja maalattu, sadevesikaivot asennettu sekä uudet
rännit.
Energiatodistus
Ei lain edellyttämää energiatodistusta
Lämmitysjärjestelmän kuvaus
öljy
Vesihuollon kuvaus
Kunnan
Viemäri
Kunnan
Sähköliittymä siirtyy
Kyllä
Tilat ja materiaalit
Rakennus- ja pintamateriaalit
  • Pääasiallinen rakennusmateriaali: Puu
Katto
  • Kattotyyppi: Harjakatto
  • Kattomateriaalit: Pelti
Keittiön kuvaus
  • Lattiamateriaalit: Laminaatti
  • Seinämateriaalit: Maalattu
  • Liesi: Sähköliesi
  • Varusteet: Jääkaappi/pakastin, Liesituuletin
Kylpyhuoneen kuvaus
  • Uusittu 2009
  • Lattiamateriaalit: Laatta
  • Seinämateriaalit: Kaakeli
  • Varusteet: Suihkuseinä, pesukoneliitäntä, lattialämmitys, suihku, peilikaappi, kiinteät valaisimet, kylpyhuonekaapisto, asennettuja erikoisvarusteita
WC-tilojen kuvaus
  • Lattiamateriaalit: Muovi
  • Seinämateriaalit: Maalattu
Saunan kuvaus
  • Uusittu 2009
  • Lattiamateriaalit: Laatta
  • Seinämateriaalit: Kaakeli, puu
Olohuoneen kuvaus
  • Lattiamateriaalit: Laminaatti
  • Seinämateriaalit: Maalattu
Makuuhuoneiden kuvaus
  • Lattiamateriaalit: Laminaatti
  • Seinämateriaalit: Maalattu
Tontti
Tontin omistus
Oma
Kiinteistötunnus
598-402-3-447
Tontin koko
1 670 m2
Rakennusoikeus e-luku
0.25
Sijainti
Näytä Google Maps palvelussa
Ota yhteyttä

    Lomakkeella voit kätevästi pyytää lisätietoja tästä kohteesta.