Hyvin suunniteltu omakotitalo vuodelta 1965 rauhallisella ja arvostetulla asuinalueella.

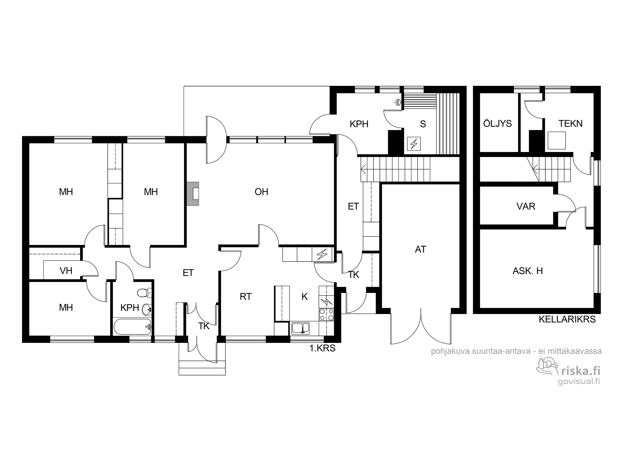
Talo käsittää 4 h + k + bdr + wc + sauna, noin 110/130 m², sekä autotalli ja kellari, jossa on harrastetila, pannuhuone ja varasto. Pihalla on lisäksi varastorakennus vuodelta 2018. Oma tontti 1 254 m².

Talo lämpenee energiatehokkaasti kalliolämmöllä. Katto on maalattu vuonna 2016, julkisivu on uusittu ja samalla talo on lisäeristetty. Myös ikkunat ja ulko-ovet on uusittu, ja keittiö on remontoitu vuonna 2017.

Hyvin hoidettu kokonaisuus rauhallisella sijainnilla lähellä koulua, päiväkotia sekä monipuolisia liikunta- ja ulkoilumahdollisuuksia.

Välplanerat egnahemshus från 1965 lugnt och eftertraktat bostadsområde.

Huset omfattar 4 r+k+bdr+wc+bastu ca 110/130m2 samt garage och källare med hobbyrum, pannrum och förråd. På gården finns även en förrådsbyggnad från 2018. Egen tomt 1.254 m2.

Huset värms energieffektiv upp med bergvärme, taket har blivit målat 2016, fasaden har blivit bytt och på samma gång har man tilläggsisolerat huset. Även fönstren och ytterdörrarna är förnyade och köket har blivit renoverat 2017.

Välskött helhet på lugnt läge nära skola, daghem och mångsidiga motions- och friluftsmöjligheter.

Perustiedot
Kohdenumero
21190067
Sijainti
  • Skutnäs
  • Reimaritie 12
  • 68620 Pietarsaari
Tyyppi
Omakotitalo
Huoneistoselitelmä
4 h + k + kph/sauna + wc
Huoneita
4 h
Asuinpinta-ala
110 m2
Kokonaispinta-ala
130 m2
Lisätietoja pinta-alasta
  • 4 h+k+kph+sauna+wc n. 110/130 m2 + autotalli sekä kellari, jossa askarteluhuone, pannuhuone ja varasto
Rakennusvuosi
1965
Vapautuminen
Sopimuksen mukaan
Pohjakuva
Pohjakuva
Hinta ja kustannukset
Myyntihinta
89 000 €
Neliöhinta
809,09 € / m2
Kiinteistövero
180 €/v
Muut maksut
  • Sähkönkulutus
    2022 n. 10.500 kwh
    2023 n. 9.500 kwh
    2024 n. 9.100 kwh
    2025 n. 5.800 kwh (per 04.11.2025)
Lisätiedot
Sauna
  • Oma sauna
Yleiskunto
Ei luokiteltu
Tehdyt remontit
Katto on maalattu vuonna 2016, julkisivu on uusittu ja samalla talo on lisäeristetty. Myös ikkunat ja ulko-ovet on uusittu, ja keittiö on remontoitu vuonna 2017.
Energiatodistus
Ei lain edellyttämää energiatodistusta
Lämmitysjärjestelmän kuvaus
Maalämpö, ilmalämpöpumppu
Vesihuollon kuvaus
Kunnan
Viemäri
Kunnan
Tilat ja materiaalit
Keittiön kuvaus
  • Lattiamateriaalit: Vinyyli
  • Seinämateriaalit: Tapetti
  • Liesi: Induktioliesi, erillisuuni
  • Varusteet: Jääkaappi, Liesituuletin, mikroaaltouuni, astianpesukone
Kylpyhuoneen kuvaus
  • Lattiamateriaalit: Betoni
  • Seinämateriaalit: Puu
WC-tilojen kuvaus
  • Lattiamateriaalit: Laatta
  • Seinämateriaalit: Kaakeli
Olohuoneen kuvaus
  • Lattiamateriaalit: Parketti
  • Seinämateriaalit: Tapetti
Makuuhuoneiden kuvaus
  • Lattiamateriaalit: Muovi
  • Seinämateriaalit: Maalattu, tapetti
Tontti
Tontin omistus
Oma
Kiinteistötunnus
598-21-23-4
Tontin koko
1 254 m2
Muut rakennukset
Varastorakennus, rakennettu 2018, n. 10 m2.
Sijainti
Näytä Google Maps palvelussa
Ota yhteyttä

    Lomakkeella voit kätevästi pyytää lisätietoja tästä kohteesta.