Hyvin suunniteltu ja erittäin hyvin hoidettu omakotitalo myynnissä Kirkkorannalla.

Talo on rakennettu vuonna 1968 ja käsittää 4 h + k + wc + kodinhoitohuone + sauna, pinta-ala 99,4 m². Kaunis 896 m² tontti, jossa tilava kahden auton autotalli ja varasto. Lämmitys- ja käyttövesiputket uusittu vuonna 2006, keittiö uusittu 2007, kylpyhuone osittain kunnostettu, öljypannu vaihdettu 2018 sekä pintaremontteja tehty vuosien varrella.

Täydellinen kokonaisuus rauhallisella ja viihtyisällä alueella, lähellä päiväkotia, koulua ja leikkipuistoa – erinomainen valinta lapsiperheelle.

Ota yhteyttä ja varaa esittelyaikasi!

Välplanerat och mycket välskött egnahemshus till salu i Kyrkostrand.

Huset är byggt 1968 och omfattar 4r+k+wc+tvättrum+bastu 99,4 m2. Fin 896 m2 stor tomt med ett rymligt dubbelgarage med förråd. Värme- och bruksvattenrören har blivit förnyade 2006, köket förnyat 2007, badrummet delvis förnyat, och pannan bytt 2018 samt lite ytrenoveringar genom årens lopp.

Perfekt helhet på lugnt och trivsamt område med daghem, skola och lekpark i närheten som lämpar sig utmärkt åt en barnfamilj.

Ta kontakt och boka din visning!

Perustiedot
Kohdenumero
20911786
Sijainti
  • Kirkkoranta
  • Kannaksentie 42
  • 68600 Pietarsaari
Tyyppi
Omakotitalo
Huoneistoselitelmä
4 h + k + wc + kph/s
Huoneita
4 h
Asuinpinta-ala
99,40 m2
Kokonaispinta-ala
147,80 m2
Lisätietoja pinta-alasta
  • 4 h+k+wc+pesuhuone+sauna, 99,4 m2.
Rakennusvuosi
1968
Vapautuminen
Sopimuksen mukaan
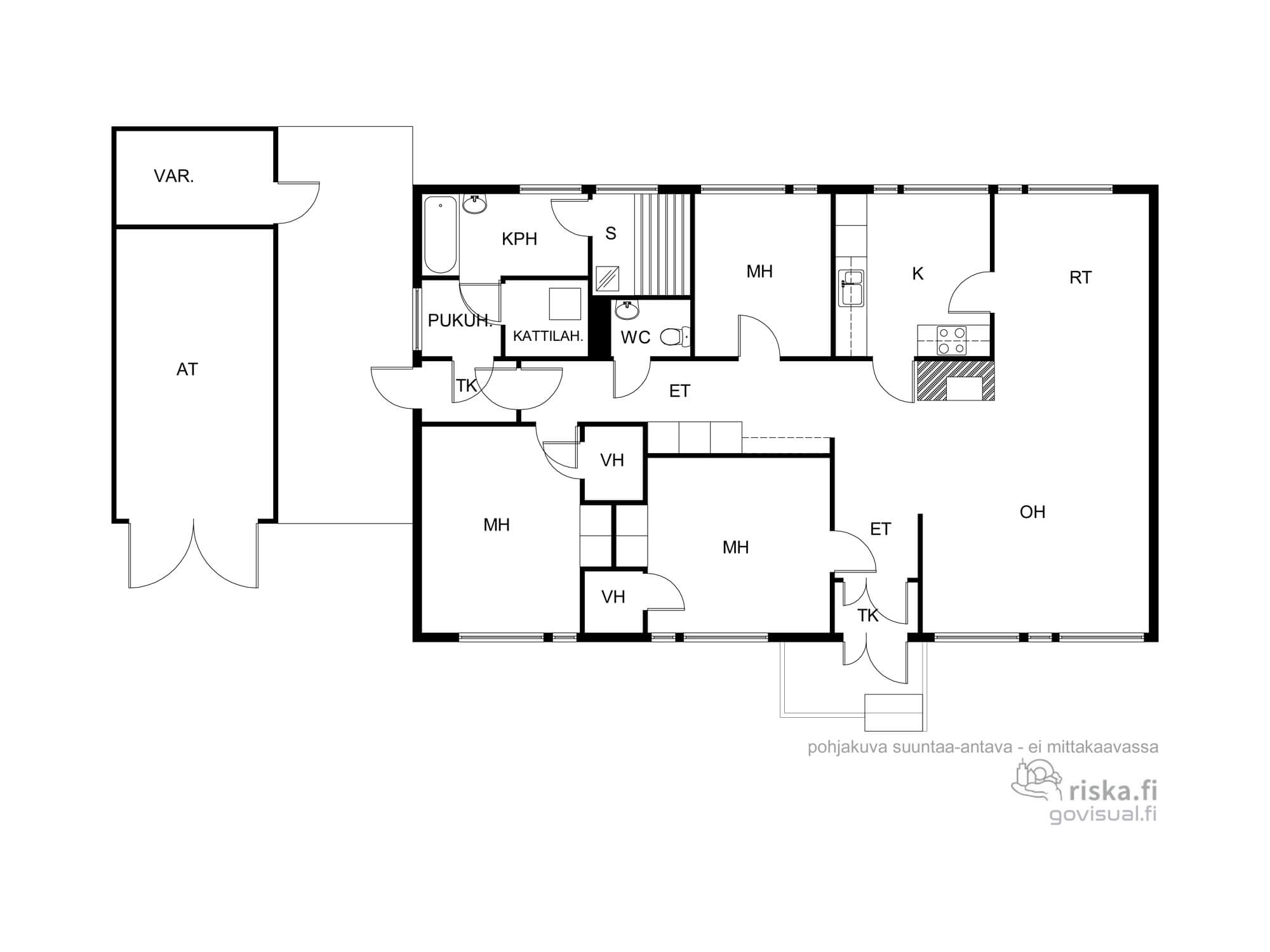
Pohjakuva
Pohjakuva
Hinta ja kustannukset
Myyntihinta
65 000 €
Neliöhinta
653,92 € / m2
Kiinteistövero
164 €/v
Muut maksut
  • Öljynkulutus n. 1.500 l/v + puulämmitys
Lisätiedot
Sauna
  • Oma sauna
Kohteeseen kuuluu
Kaapeli-tv
Yleiskunto
Ei luokiteltu
Tehdyt remontit
2006 Lämpö- ja käyttövesiputket uusittu
2007 Keittiö uusittu
2018 Öljypannu uusittu
Kylpyhuone osittain uusittu
Pintaremontoitu vuosien varrella
Energiatodistus
Ei lain edellyttämää energiatodistusta
Lämmitysjärjestelmän kuvaus
öljy, puu
Vesihuollon kuvaus
Kunnan
Viemäri
Kunnan
Sähköliittymä siirtyy
Kyllä
Tilat ja materiaalit
Katto
  • Kattotyyppi: Harjakatto
  • Kattomateriaalit: Pelti
Keittiön kuvaus
  • Lattiamateriaalit: Muovi
  • Seinämateriaalit: Tapetti
  • Liesi: Sähköliesi
  • Varusteet: Jääkaappi/pakastin, Astianpesukone, liesituuletin / hormi
Kylpyhuoneen kuvaus
  • Lattiamateriaalit: Laatta
  • Seinämateriaalit: Kaakeli
  • Varusteet: Pesukoneliitäntä, lattialämmitys, suihku, kiinteät valaisimet
WC-tilojen kuvaus
  • Lattiamateriaalit: Laatta
  • Seinämateriaalit: Kaakeli, maalattu
  • Varusteet: Peilikaappi
Olohuoneen kuvaus
  • Lattiamateriaalit: Parketti
  • Seinämateriaalit: Tapetti
Makuuhuoneiden kuvaus
  • Lattiamateriaalit: Parketti
  • Seinämateriaalit: Tapetti
Tontti
Tontin omistus
Vuokrattu
Tontin vuokra
632,49 € / vuosi
Tontin vuokraaja
Pietarsaaren Kaupunki
Kiinteistötunnus
598-18-18-3-L2
Tontin koko
896 m2
Muut rakennukset
Autotallirakennus, rakennettu 1969, n. 50 m2
Sijainti
Näytä Google Maps palvelussa
Ota yhteyttä

    Lomakkeella voit kätevästi pyytää lisätietoja tästä kohteesta.