Kodikas omakotitalo rauhallisella ja arvostetulla asuinalueella!
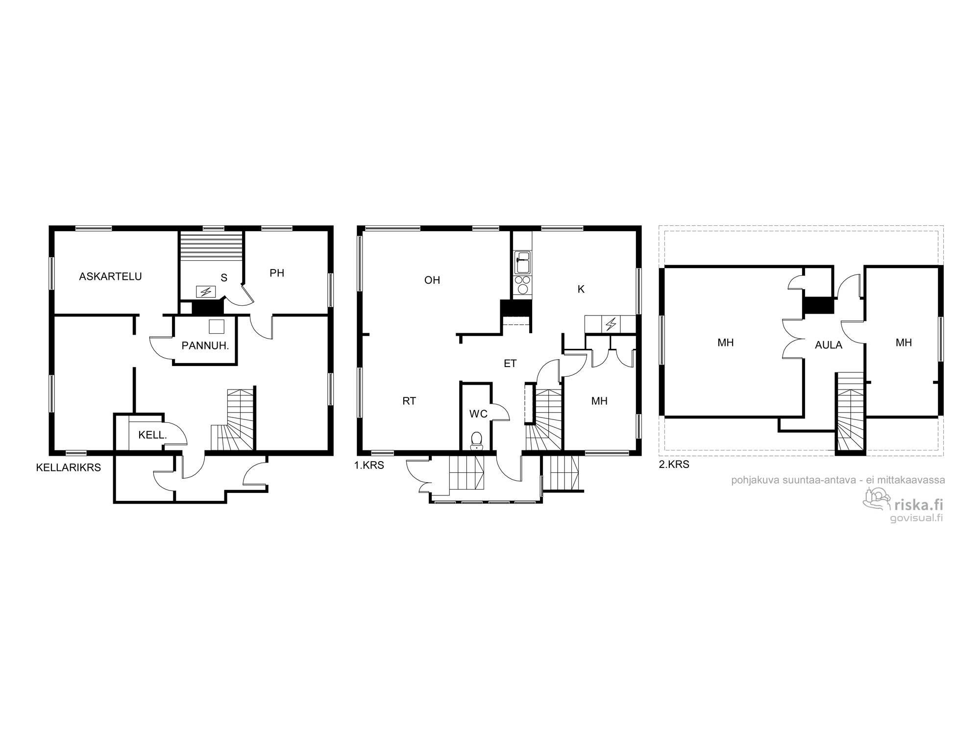
Tervetuloa Kirkkorannalle tutustumaan tähän viehättävään omakotitaloon, joka on rakennettu vuosina 1954/55 ja käsittää 1 1/2 kerrosta + kellarikerroksen. Vankkarakenteinen pystyhirsi runko. Asuintilat koostuvat olohuoneesta ja ruokasalista, makuuhuoneesta, wc:stä, eteisestä sekä keittiöstä, joka on täysin remontoitu vuonna 2016. Ensimmäisen kerroksen asuinpinta-ala on noin 74 m². Viehättävässä yläkerrassa on kaksi tilavaa makuuhuonetta sekä oleskelutila, yhteensä noin 44 m², mikä tekee kokonaispinta-alaksi 118/138 m². Kellarikerroksen pinta-ala on noin 80 m², jossa on kaksi tilavaa varasto-/harrastetilaa, pannuhuone, kodinhoitotila sekä vuonna 2010 täysin remontoitu kylpyhuone/wc/saunaosasto.
Tontilla on lisäksi eristetty autotalli, johon mahtuu 23 autoa, pinta-ala noin 46/52 m². Oma tontti, noin 1026 m², koostuu nurmikosta ja istutuksista.
Kodikas omakotitalo erinomaisella sijainnilla lapsiperheelle. Koulut ja päiväkodit ovat kävelyetäisyyden päässä. Pyydä esittelyaika!
–
Hemtrevligt eh-hus på lugnt och omtyckt bostadsområde!
Välkommen till Kyrkostrand och detta charmiga egnahemhus som är uppfört 1954/55 i 1 1/2 plan + källarvåning. Huset är gediget byggt med husstommen uppförd på stående stock. Husets bostadsytor består av vardagsrum och matsal, sovrum, wc, tambur och kök som totalrenoverats år 2016, 1- våningens bostadsyta ca 74 m2, på den mysiga vindsvåningen finns 2 st rymliga sovrum samt allrum ca 44 m2, vilket ger totalyta 118/138 m2. I husets källarvåning är ca 80 m2, vari finns 2 rymliga förråds/hobbyrum, pannrum, klädvård och år 2010 totalrenoverad badrum/wc/bastuavdelning.
På tomten finns ytterligare ett isolerat garage som rymmer 2-3 st bilar ca 46/52 m. Den egna, ca 1026 m2 stora tomten, består av gräsmatta och planteringar.
Här hemtrevligt egnahem på ypperligt läge för barnfamilj med skolor och daghem på promenadavstånd. Begär visning!
- Kohdenumero
- 20896042
- Sijainti
- Kirkkoranta
- Kirkkorannankatu 13
- 68600 Pietarsaari
- Tyyppi
- Omakotitalo
- Huoneistoselitelmä
- 4 h + ruok.tila + oleskelutila + keittiö
- Huoneita
- 4 h
- Asuinpinta-ala
- 118 m2
- Kokonaispinta-ala
- 138 m2
- Lisätietoja pinta-alasta
- 1 krs: Olohuone, ruok.tila, makuuhuone, wc, eteinen ja keittiö n. 74 m2
2 krs: 2 makuuhuonetta ja oleskelutila n. 44 m2
Yhteensä 118/138 m2
Kellari: 2 varasto/askarteluhuonetta, pannuhuone, kodinhoitohuone ja kph/wc/saunaosasto, yhteensä n. 80 m2
- 1 krs: Olohuone, ruok.tila, makuuhuone, wc, eteinen ja keittiö n. 74 m2
- Rakennusvuosi
- 1955
- Vapautuminen
- Sopimuksen mukaan
- Myyntihinta
- 94 500 €
- Neliöhinta
- 800,85 € / m2
- Kiinteistövero
- 338 € / vuosi
- Muut maksut
- Öljynkulutus n. 2.000-2.200 l/v
- Sauna
- Oma sauna
- Kohteeseen kuuluu
- Kaapeli-tv, kuntotarkastus tehty
- Yleiskunto
- Ei luokiteltu
- Tehdyt remontit
- 2004 Sähköt uusittu
2009 Salaojitus
2008 Julkisivu maalattu
2010 Kph/wc/saunaosasto
2012 Wc
2016 Käyttövesiputket/viemäri
2016 Keittiö uusittu
2018 Vesikatto maalattu - Energiatodistus
- Ei lain edellyttämää energiatodistusta
- Lämmitysjärjestelmän kuvaus
- öljy, ilmalämpöpumppu
- Vesihuollon kuvaus
- Kunnan
- Viemäri
- Kunnan
- Sähköliittymä siirtyy
- Kyllä
- Rakennus- ja pintamateriaalit
- Pääasiallinen rakennusmateriaali: Hirsi
- Rakennusmateriaali: Pystyhirsi, päädyt piirutettu
- Katto
- Kattotyyppi: Harjakatto
- Kattomateriaalit: Pelti
- Keittiön kuvaus
- Uusittu 04/2016
- Lattiamateriaalit: Laminaatti
- Seinämateriaalit: Puu, tapetti
- Liesi: Induktioliesi, erillisuuni
- Varusteet: Jääkaappi, Mikroaaltouuni, astianpesukone, liesituuletin / suodatin
- Kylpyhuoneen kuvaus
- Kellarissa, uusittu 2010
- Lattiamateriaalit: Laatta
- Seinämateriaalit: Kaakeli
- Varusteet: Suihkuseinä, pesukoneliitäntä, lattialämmitys, wc-istuin, peilikaappi, peili, kiinteät valaisimet, kylpyhuonekaapisto
- WC-tilojen kuvaus
- Lattiamateriaalit: Laatta
- Seinämateriaalit: Kaakeli
- Saunan kuvaus
- Kellarissa, uusittu 2010
- Lattiamateriaalit: Laatta
- Seinämateriaalit: Puu
- Olohuoneen kuvaus
- Lattiamateriaalit: Muovi
- Seinämateriaalit: Tapetti
- Makuuhuoneiden kuvaus
- Lattiamateriaalit: Laminaatti
- Seinämateriaalit: Maalattu, tapetti
- Tontin omistus
- Oma
- Kiinteistötunnus
- 598-18-4-2
- Tontin koko
- 1 026 m2
- Muut rakennukset
- Autotallirakennus, 2-3 autolle, n. 46/52 m2, rakennettu 1984/85.