Edullinen talo pidetyllä sijainnilla Pietarsaaressa!

Talo on alun perin rakennettu vuonna 1929, mutta sitä on muutettu 1960-luvulla ja osittain peruskorjattu 1980-luvulla. Talossa on alakerrassa 2–3 h+k+wc+kph, noin 75 m², ja yläkerrassa 2 h+k+alkovi+wc ja kylpyhuone, noin 45 m². Talon alakerta ja osittain yläkerta on remontoitu vuosina 1985–1986, peltikatto uusittu vuonna 1998 ja talon lämmitysjärjestelmä on uusittu vuonna 2006. Lisäksi ilmalämpöpumppu on asennettu vuonna 2008, ja olohuoneessa on takka.

Piharakennus noin 35/40 m², jossa on kylmä autotalli, varasto ja pannuhuone. Vuokratontti 485 m². Mahdollisuuksien kiinteistö hyvällä sijainnilla!

Förmånligt hus på omtyckt läge i Vestanpå!

Huset är ursprungligen byggts 1929 men ombyggts 1960-talet och delvist grundsanerats på 1980-talet. Huset omfattar 2-3 r+k+wc+bdr ca 75 m2 i 1-våningen och 2 r+k+alkov+wc och badrum på vindsvåningen ca 45 m2. Husets nedre våning och delvist vindsvåning har renoverats 1985-1986, plåttaket förnyats 1998 och husets värmesystem har förnyats 2006, därtill har luftvärmepump installerats 2008 och i vardagsrummet finns en vedspis.

Uthusbyggnad ca 35/40 m2 med kallgarage, förråd och pannrum. Arrendetomt 485 m2. Möjligheternas fastighet på bra läge!

Perustiedot
Kohdenumero
20585259
Sijainti
  • Läntelä
  • Keskustie 17
  • 68620 Pietarsaari
Tyyppi
Omakotitalo
Huoneistoselitelmä
5 h + 2 k + 2 wc + 2 kph
Huoneita
5 h
Asuinpinta-ala
120 m2
Kokonaispinta-ala
120 m2
Lisätietoja pinta-alasta
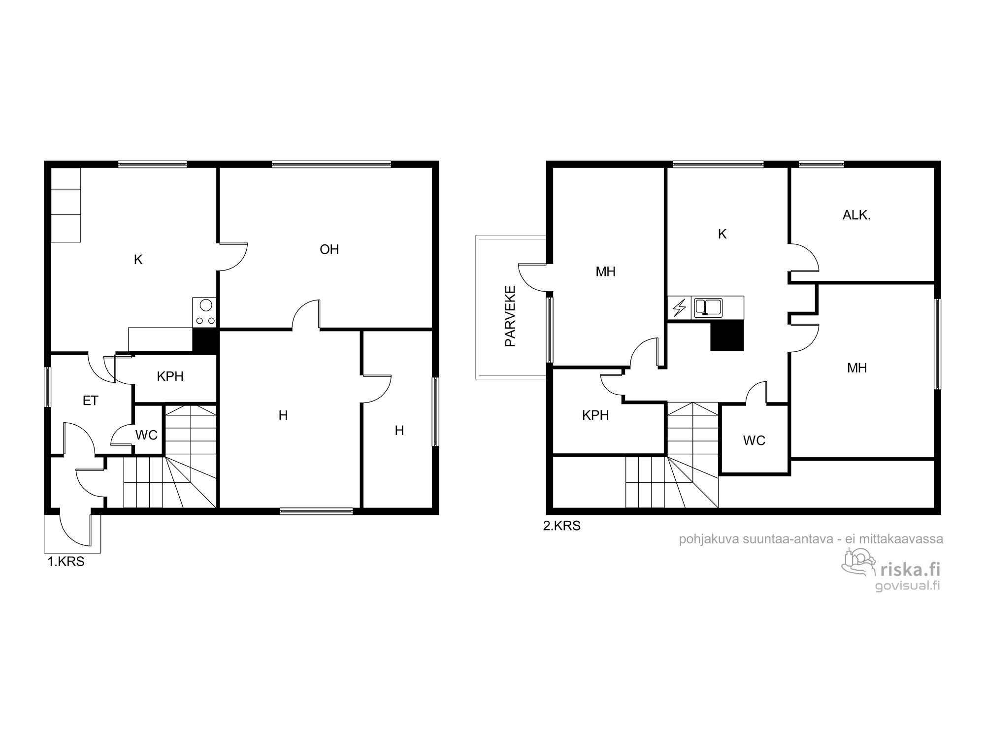
  • 1 krs: 3 h+k+wc+kph n. 75 m2
    2 krs: 2 mh+k+wc+kph n. 45 m2
Rakennusvuosi
1929
Vapautuminen
Sopimuksen mukaan
Pohjakuva
Pohjakuva
Hinta ja kustannukset
Myyntihinta
49 500 €
Neliöhinta
412,50 € / m2
Kiinteistövero
176,21 €/v
Lisätiedot
Kohteeseen kuuluu
Kuntotarkastus tehty
Yleiskunto
Ei luokiteltu
Tehdyt remontit
Alakerta ja yläkerta osittain remontoitu 1985-1986, lattiat, lisäeristys, julkisivun laudoitus osittain.
1998 Peltikatto, ikkunat osittain, ulko-ovi.
2006 Lämpökeskus
2008 Ilmalämpöpumppu, alakerran suihkuhuone uusittu.
Lämmitysjärjestelmän kuvaus
öljy, ilmalämpöpumppu
Vesihuollon kuvaus
Kunnan
Viemäri
Kunnan
Sähköliittymä siirtyy
Kyllä
Tilat ja materiaalit
Katto
  • Kattotyyppi: Harjakatto
  • Kattomateriaalit: Pelti
Keittiön kuvaus
  • Kaapistot 1985/1986 (alakerta)
  • Lattiamateriaalit: Muovi
  • Seinämateriaalit: Tapetti
  • Liesi: Sähköliesi
  • Varusteet: Jääkaappi/pakastin, Liesituuletin / hormi
Kylpyhuoneen kuvaus
  • 2 x kph
  • Lattiamateriaalit: Muovi
  • Seinämateriaalit: Muovi
  • Varusteet: Kylpyamme, pesukoneliitäntä, suihku
WC-tilojen kuvaus
  • 2 x wc
  • Lattiamateriaalit: Muovi
  • Seinämateriaalit: Muovi
Olohuoneen kuvaus
  • Lattiamateriaalit: Muovi
  • Seinämateriaalit: Tapetti
Makuuhuoneiden kuvaus
  • Lattiamateriaalit: Muovi
  • Seinämateriaalit: Tapetti
Tontti
Tontin omistus
Vuokrattu
Tontin vuokra
449,94 € / vuosi
Tontin vuokraaja
Pietarsaaren Kaupunki
Kiinteistötunnus
598-9-8-5-L1
Tontin koko
485 m2
Muut rakennukset
Piharakennus, 35/40 m2, jossa kylmä autotalli, varasto ja pannuhuone.
Sijainti
Näytä Google Maps palvelussa
Ota yhteyttä

    Lomakkeella voit kätevästi pyytää lisätietoja tästä kohteesta.