Hyvin hoidettu ja tilava kokonaisuus Forsbyssä!

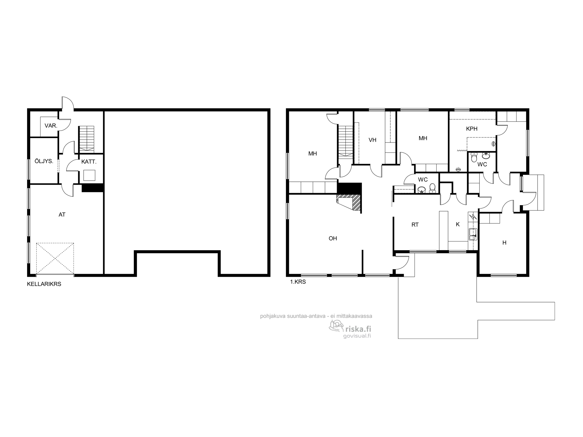
Siisti ja hyvin suunniteltu perhe­talo vuodelta 1969. Asuinpinta‑ala on noin 120 m² ja käsittää 5 huonetta, keittiön, kodinhoitohuoneen sekä kaksi erillistä wc:tä. Kellarikerroksessa sijaitsevat pesutupa, pannuhuone ja autotalli, noin 52 m². Talo on hyvässä kunnossa ja sitä on huollettu ja päivitetty säännöllisesti, mm. kalliolämmitys asennettu vuonna 2022 sekä märkätilat ja WC:t uusittu vuonna 2010.

Pihapiirissä on varastorakennusten lisäksi noin 360 m²:n laajuinen talousrakennus, jossa on autotalli, isot varasto­tilat, entisiä kylmätiloja sekä sauna.

Suuri 9 703 m²:n oma tontti tarjoaa erinomaiset mahdollisuudet viljelyyn, puutarhaan ja harrastustoimintaan. Alueella on myös käyttämätön rakennusoikeus omakotitalolle sekä rantakaistale joen varrella.

Tämä kokonaisuus on erinomainen valinta sinulle, joka etsit hyvin hoidettua, tilavaa kiinteistöä, viihtyisillä ulkoilu­mahdollisuuksilla ja miellyttävällä sijainnilla Forsbyssä.

Välskött fastighet med generösa utrymmen i Forsby!

Fint familjehus byggt 1969 med välplanerade utrymmen. Bostadsytan omfattar 5 rum och kök, tvättrum samt två separata wc:n:n ca 120 m². I källarvåningen finns tvättstuga, pannrum och garage om ca 52 m². Huset är i gott skick och har löpande underhållits och uppdaterats med, bl.a. med bergvärme 2022, renoverade våtutrymmen och wc:n 2010.

På tomten finns förrutom förrådslador, en rymlig ekonomibyggnad på ca 360 m², omf. garage, stora lagerutrymmen, tidigare kylutrymmen samt bastu.

Stor egen tomt 9 703 m² som ger goda möjligheter för odling, trädgård och hobbyverksamhet. På området finns även en obebyggd byggrätt för ett egnahemshus samt ett strandområde intill ån.

En attraktiv helhet för dig som söker en välskött fastighet med stora utrymmen, härliga utomhusmöjligheter och ett trivsamt läge i Forsby.

Perustiedot
Kohdenumero
9499057
Sijainti
  • Forsby
  • Forsbyntie 226
  • 68920 Forsby
Tyyppi
Omakotitalo
Omistusmuoto
Omistusasunto
Huoneistoselitelmä
5 h + k + pesuhuone + 2 wc + kellari
Huoneita
Ei luokiteltu
Asuinpinta-ala
120 m2
Lisätietoja pinta-alasta
  • 5 h+k+pesuhuone, 2 wc n. 120 m2 + kellarikerros, jossa pesutupa, pannuhuone ja autotalli, n. 52 m2
Rakennusvuosi
1969
Vapautuminen
Sopimuksen mukaan
Pohjakuva
Pohjakuva
Hinta ja kustannukset
Myyntihinta
109 000 €
Neliöhinta
908,33 € / m2
Kiinteistövero
252,28 €/v
Lisätiedot
Yleiskunto
Ei luokiteltu
Tehdyt remontit
2022 Kalliolämmitys
Energiatodistus
Ei lain edellyttämää energiatodistusta
Lämmitysjärjestelmän kuvaus
Sähkölämmitys, muu
Vesihuollon kuvaus
Kunnan
Viemäri
Oma, ikään perustuva vapautus
Sähköliittymä siirtyy
Kyllä
Tilat ja materiaalit
Rakennus- ja pintamateriaalit
  • Pääasiallinen rakennusmateriaali: Puu, tiili
  • Rakennusmateriaali: Puurunko, tiilivuoraus. Kellarikerros valettu.
Katto
  • Kattotyyppi: Harjakatto
  • Kattomateriaalit: Pelti
Keittiön kuvaus
  • Lattialämmitys
  • Lattiamateriaalit: Muovi
  • Seinämateriaalit: Maalattu
  • Liesi: Sähköliesi
  • Varusteet: Jääkaappi/pakastin, Liesituuletin, astianpesukone
Kylpyhuoneen kuvaus
  • Remontoitu 2010
  • Lattiamateriaalit: Laatta
  • Seinämateriaalit: Kaakeli
  • Varusteet: Pesukoneliitäntä, lattialämmitys, suihku, peilikaappi, peili, kiinteät valaisimet
WC-tilojen kuvaus
  • Lattiamateriaalit: Laatta
  • Seinämateriaalit: Kaakeli
  • Varusteet: Lattialämmitys
Olohuoneen kuvaus
  • Lattiamateriaalit: Parketti
  • Seinämateriaalit: Tapetti
Makuuhuoneiden kuvaus
  • Lattiamateriaalit: Muovi
  • Seinämateriaalit: Tapetti
Tontti
Tontin omistus
Oma
Kiinteistötunnus
599-403-16-18, 599-403-16-33
Lisätietoja tontista
599-403-16-18 (3.767 m2) + 599-403-16-33 (5.936 m2, tällä tontilla on käyttämätön rakennusoikeus+erillinen ranta-alue)
Tontin koko
9 703 m2
Muut rakennukset
Ulkorakennus, rakennettu 1960, puu/tiili, harjakatto/pelti, n. 360 m2. Käsittää varastotilaa, autotalli sekä ent. kylmätilat. Rakennuksessa on voimavirta-pistoke. Varastolatoja.
Sijainti
Näytä Google Maps palvelussa
Ota yhteyttä

    Lomakkeella voit kätevästi pyytää lisätietoja tästä kohteesta.