Skolgatan 5 B13, 2 r+kv, 2-vån. Snygg och välplanerad tvårummare i grundsanerat bostadsbolag på bra läge nära all service! Grundsanering utförd 2008 + nya fönster 2017. Möjlighet att köpa varmgarage, 15.000 .
Basuppgifter
- Objektsnummer
- 9570185
- Läge
- Centrum
- Skolgatan 5 B 13
- 68600 Jakobstad
- Typ
- Höghus
- Ägandeform
- Egen
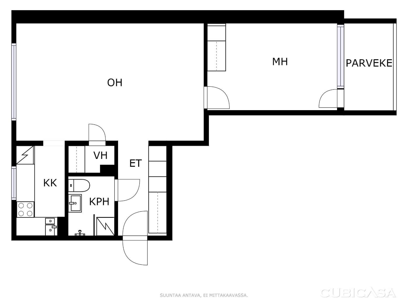
- Rumsfördelning
- 2 r + kv + bdr
- Rum
- 2 rum
- Bostadsyta
- 49,5 m2
- Mer information om ytan
- 2 h+kk+kph
- Våning
- 2/4
- Hiss
- Nej
- Byggår
- 1971
- Frigörs
- Enligt överenskommelse
Planritning

Pris och kostnader
- Skuldfritt pris
- 72 270 €
- (Försäljningspris 55 020 € + Skuldandel 17 250 €)
- Försäljningspris
- 55 020 €
- Skuldandel
- 17 250 €
- Kvadratmeterpris
- 1 460 € / m2
- Bolagsvederlag
- 331,65 € / mån
- (Driftsvederlag 193,05 € / mån + Finansieringsvederlag 138,60 € / mån)
- Övriga avgifter
- Vattenförskott 25 €/pers/mån
Tilläggsuppgifter
- Balkong
- Väderstreck: Söderut
- Kondition
- Bra
- Uppvärmningssystem
- Fjärrvärme
Utrymmen och material
- Byggnads- och ytmaterial
- Huvudsakliga byggnadsmaterial: Betong
- Tak
- Tak: Åstak
- Yttertak: Plåt
Övrig information
- Utsikt
- Söder
Bostadsbolag
- Bostadsbolagets namn
- Bostads Ab Jakobstads Skolgatan 5 Asunto Oy
- Disponent
- Retta / Timo Kumpu
- Fastighetsskötsel
- JS-Fastighetsservice AB
- Till bostadsbolaget hör
- Bastu, skyddsrum, Lägenhetsbundna förråd
- Bostadsbolagets bilplatser
- Garageplatser: 2
- Affärslokaler
- 3
- Areal
- 1 784 m2
- Tomt
- Egen
- Utförda renoveringar
- 2008 Grundsanering: Fasaden sanerad, balkongernas betongfogar förnyade, nya kök. Badrummen förnyade och installering av komfortgolvvärme. Bruksvatten- och avloppsnätet, tele- och antenn-nät, elnät förnyade. Alla ytor i bostäderna förnyade. Vatten- och värme mätningssystem, värmeväxlare. Förbättring av ventilation. Byggt 2 mindre affärslägenheter. Gårdsplan och avfallstak.
2013 Pprotan-ytbeläggning på taket, 25 år.
2017 Nya fönster och balkongdörrar. Ventilationsrengöring. - Planerade renoveringar
- 5-års underhållsplan:
2018 Affärslägenhet 1: 2 fönster mot gården. Tvättning och målning av trapphusbalkonger.
2019 Provtryckning av skyddsrum. Reparation av asfaltkanter.
2020 Kontroll och spolning av dränering.
2021 Förnyande av elastiska fogar.
2018-2020 Förnyande av badrumsinredningar vid behov. Underhåll av elsystem vid behov. - Energiklass
- F2013
Läge
Kontakta oss