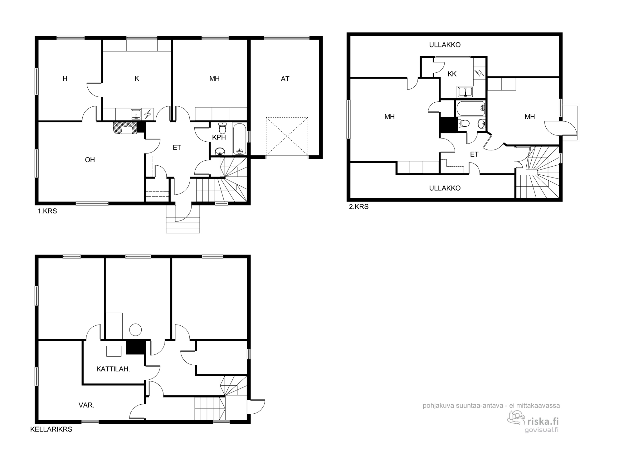
Rymligt och hemtrevligt eh-hus byggt 1952 omf. 3r+kök+badrum, hall i nedre vån ca 80 m2 + 2r+kokvrå, badrum på övre vån ca 47 m2. Källarvåning ca 80 m2 omf. bastu, tvättrum, hobbyrum, förråd och tekniskt rum. Garage ca 21 m2.

Tomt 945 m2 på bra läge nära centrum. Förmånligt hus med bl.a. fjärrvärme och delvis förnyade fönster, robotgräsklippare m.m.

Basuppgifter
Objektsnummer
21223820
Läge
  • Västermalm
  • Tengströmsgatan 51
  • 68620 Jakobstad
Typ
Egnahemshus
Rumsfördelning
3 r + k + 2 r + kv + källare och garage
Rum
5 rum
Bostadsyta
125 m2
Totalyta
205 m2
Mer information om ytan
  • 3 r+k+bdr+hall ca 80 m2 + 2 r+kv+bdr ca 47 m2 + källare med bastu, tvättrum, hobbyrum, förråd och tekn.utrymme. Garage ca 21 m2
Byggår
1952
Frigörs
Enligt överenskommelse
Planritning
Planritning
Pris och kostnader
Försäljningspris
49 800 €
Kvadratmeterpris
398,40 € / m2
Tilläggsuppgifter
Bastu
  • Egen bastu
Kondition
Inte klassificerad
Fler uppgifter om konditionen
  • Säljs som renoveringsobjekt
Uppvärmningssystem
Fjärrvärme, luftvärmepump
Vattenförsörjning
Kommunal
Avlopp
Kommunalt
Elanslutning övergår
Ja
Utrymmen och material
Byggnads- och ytmaterial
  • Huvudsakliga byggnadsmaterial: Trä
Tak
  • Tak: Åstak
  • Yttertak: Plåt
Beskrivning av köket
  • Golvmaterial: Plast
  • Väggmaterial: Tapet
  • Spis: Elspis
  • Utrustning: Kylskåp/frys - kombiskåp, Spisfläkt, diskmaskin
Beskrivning av badrum
  • Golvmaterial: Plast
  • Väggmaterial: Plast
  • Utrustning: Tvättmaskinsanslutning, dusch, spegelskåp, integrerad armatur
Beskrivning av bastu
  • Golvmaterial: Betong
  • Väggmaterial: Trä
Beskrivning av vardagsrum
  • Golvmaterial: Plast
  • Väggmaterial: Tapet
Beskrivning av sovrum
  • Golvmaterial: Plast
  • Väggmaterial: Tapet
Tomt
Ägandeform
Arrende
Tomtens hyra
537,03 € / year
Hyresvärd
Staden Jakobstad
Fastighetsregister
598-1-23-120-L1
Areal
945 m2
Läge
Visa på Google Maps
Kontakta oss

    Fyll i formuläret för mera information om detta objekt.