Mycket välhållen och snygg parhuslägenhet omf. 3r+kök+badrum, bastu 82,0 m2 + takförsedd terrass mot väster.
Ljus gavellägenhet med rymligt tomtområde. Biltak och förråd nära invid bostaden. Snyggt område med bl.a. asfalterad infart och gångar. Fint läge nära daghem, skolor, strand och restaurang.
Basuppgifter
- Objektsnummer
- 21107963
- Läge
- Storströmmen
- Plommonvägen 2 C 1
- 68570 Larsmo
- Typ
- Parhus
- Ägandeform
- Egen
- Rumsfördelning
- 3 r + k + bdr/bastu
- Rum
- 3 rum
- Bostadsyta
- 82 m2
- Våningar
- 1
- Byggår
- 2012
- Frigörs
- Enligt överenskommelse
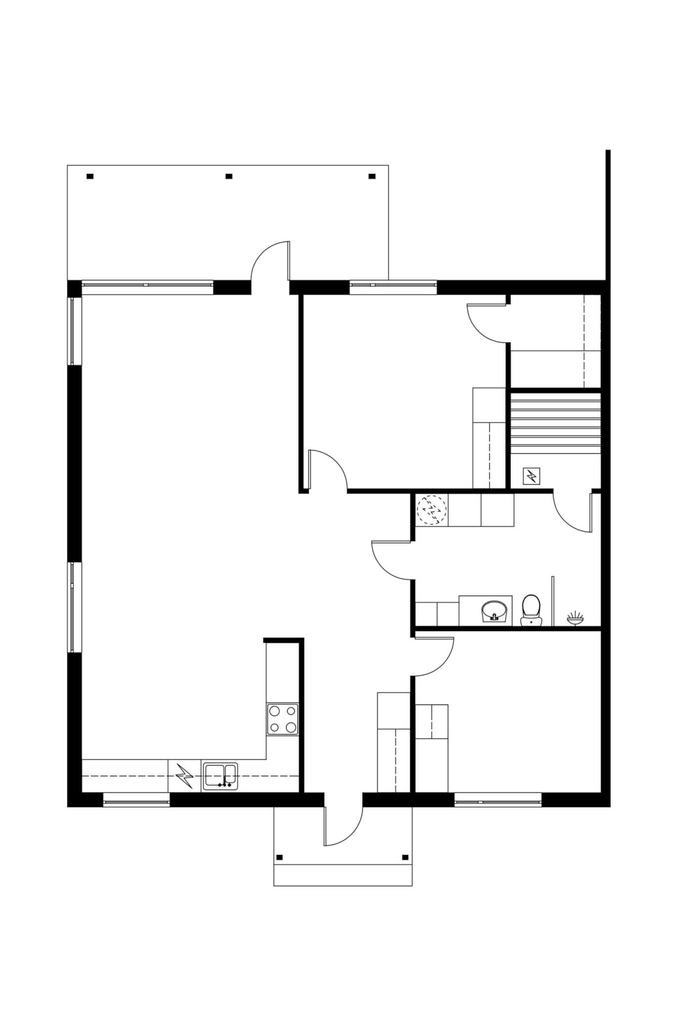
Planritning

Pris och kostnader
- Skuldfritt pris
- 162 000 €
- (Försäljningspris 158 410 € + Skuldandel 3 590 €)
- Försäljningspris
- 158 410 €
- Skuldandel
- 3 590 €
- Kvadratmeterpris
- 1 975,61 € / m2
- Bolagsvederlag
- 369 € / mån
- (Driftsvederlag 287 € / mån + Finansieringsvederlag 82 € / mån)
- Övriga avgifter
- Vattenförskott 20 €/pers/mån
Tilläggsuppgifter
- Bastu
- Egen bastu
- Kondition
- Bra
- Uppvärmningssystem
- Annat
Utrymmen och material
- Byggnads- och ytmaterial
- Huvudsakliga byggnadsmaterial: Trä
- Tak
- Tak: Åstak
- Yttertak: Plåt
- Beskrivning av köket
- Golvmaterial: Parkett
- Väggmaterial: Tapet
- Spis: Keramisk spis
- Utrustning: Kylskåp/frys - kombiskåp, Spisfläkt, diskmaskin, integrerad armatur
- Beskrivning av badrum
- Golvmaterial: Klinker
- Väggmaterial: Kakel
- Utrustning: Duschvägg, tvättmaskinsanslutning, wc, dusch, spegelskåp, spegel, integrerad armatur, badrumsskåp
- Beskrivning av bastu
- Golvmaterial: Klinker
- Väggmaterial: Trä
- Beskrivning av vardagsrum
- Golvmaterial: Parkett
- Väggmaterial: Målad
- Beskrivning av sovrum
- Golvmaterial: Parkett
- Väggmaterial: Målad
Övrig information
- Utsikt
- Terrass mot väster, vardagsrumsfönster mot väster och söder, sovrummen mot öster och väster
Bostadsbolag
- Bostadsbolagets namn
- Bostads Ab Plommonvägen 2
- Disponent
- Ekonovia Ab / Nils-Johan Enkvist, Rådhusgatan 3, 68600 Jakobstad
- Bostadsbolagets bilplatser
- Biltakplatser: 6
- Areal
- 3 071 m2
- Tomt
- Egen
- Utförda renoveringar
- 2015 Inlösning av tomten
2015 Asfaltering av gårdsplanen
2020 Förnyade ytor på yttertrapporna - Planerade renoveringar
- 5-års underhållsplan:
2027 Fasadmålning - Energiklass
- B2018
Läge
Kontakta oss