Ljus och fräsch radhuslägenhet på 80m2 med fjärrvärme som uppvärmningssystem.

Bostaden har två sovrum och ett rymligt vardagsrum, varifrån man kommer ut till terrassen och bakgården. Köket har blivit renoverat 2018 och i badrummet har man förnyat inredningen år 2021 och hösten 2025 har ytrenoveringar utförts med bla delvist förnyade golvbeläggningarna.

Eget garage och förråd finns. Välskött husbolag där man nyligen förnyat taket.

Förmånlig, snygg lägenhet! Ta kontakt och boka din visning!

Basuppgifter
Objektsnummer
20042143
Läge
  • Permo
  • Drängstigen 1 A 3
  • 68600 Jakobstad
Typ
Radhus
Ägandeform
Egen
Rumsfördelning
3 r + k + bdr
Rum
3 rum
Bostadsyta
80 m2
Våningar
1
Byggår
1973
Frigörs
Genast
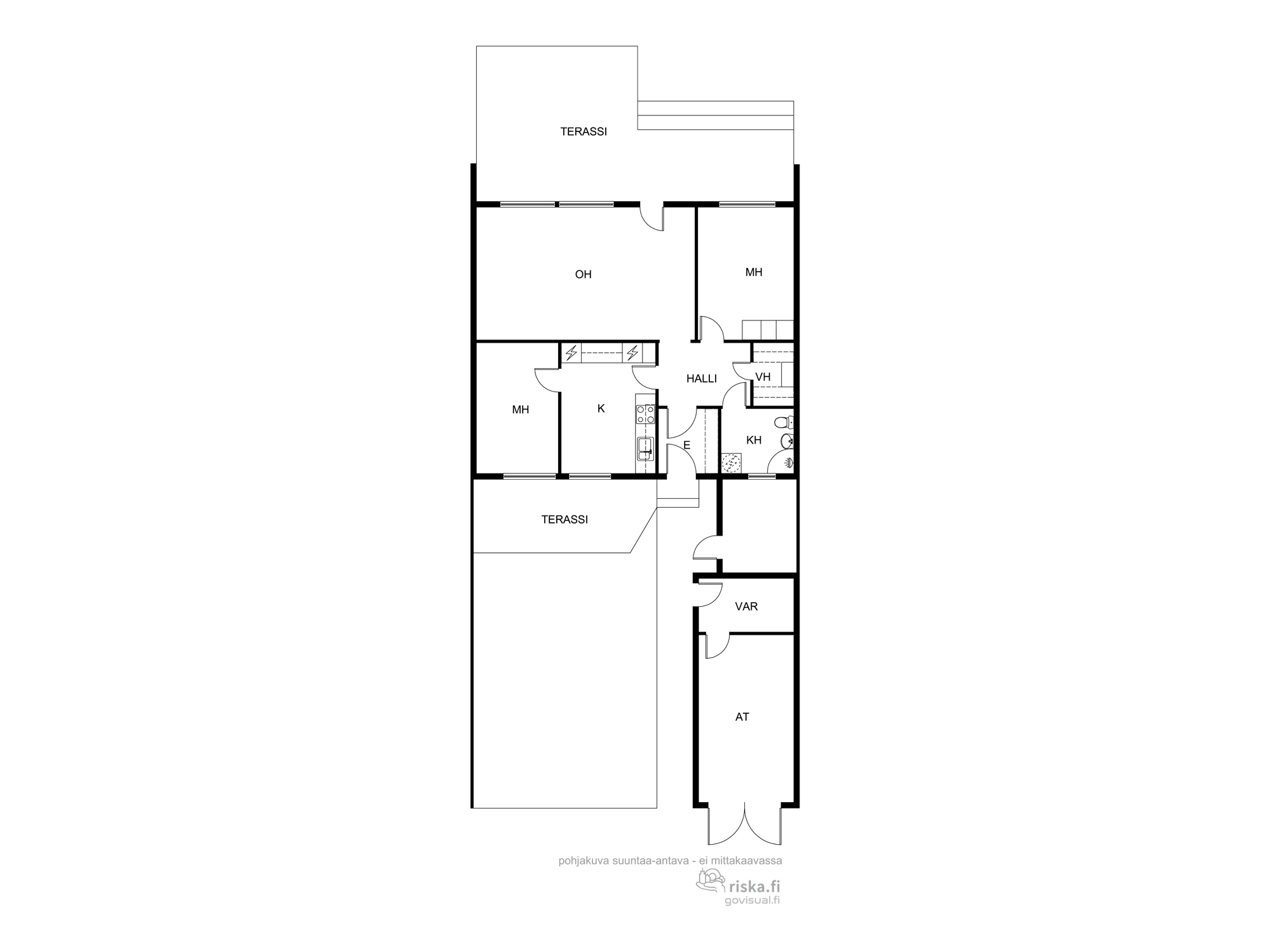
Planritning
Planritning
Pris och kostnader
Skuldfritt pris
  • 76 500 €
  • (Försäljningspris 76 500 € + Skuldandel 0 €)
Försäljningspris
76 500 €
Skuldandel
0 €
Kvadratmeterpris
956,25 € / m2
Bolagsvederlag
  • 335 € / mån
  • (Driftsvederlag 335 € / mån)
Övriga avgifter
  • Vattenavgift: 30 € / pers / mån
Tilläggsuppgifter
Ingår
Kabel-tv
Kondition
Inte klassificerad
Fler uppgifter om konditionen
  • 2018 Köket förnyat 2021 Duschskåp, spegelskåp och handfat 2022 Terrass 2025 Ytrenoverat
Uppvärmningssystem
Fjärrvärme
Utrymmen och material
Byggnads- och ytmaterial
  • Huvudsakliga byggnadsmaterial: Trä
Tak
  • Tak: Åstak
  • Yttertak: Plåt
Beskrivning av köket
  • 2018
  • Golvmaterial: Plast
  • Väggmaterial: Tapet
  • Spis: Keramisk spis, separat ugn
  • Utrustning: Kylskåp/frys - kombiskåp, Diskmaskin, integrerad armatur, spisfläkt / rökkanal
Beskrivning av badrum
  • Golvmaterial: Klinker
  • Väggmaterial: Kakel
  • Utrustning: Duschskåp, tvättmaskinsanslutning, wc, spegelskåp, integrerad armatur, badrumsskåp
Beskrivning av vardagsrum
  • Golvmaterial: Vinyl
  • Väggmaterial: Tapet
Beskrivning av sovrum
  • Golvmaterial: Laminat
  • Väggmaterial: Tapet
Övrig information
Utsikt
Bakgård mot sydost, framterrass mot nordväst
Bostadsbolag
Bostadsbolagets namn
Bostads Ab Permokröken Asunto Oy
Disponent
Retta Isännöinti Oy, Jesse Rautakoski, Storgatan, 68600 Jakobstad. 010 2288190, jesse.rautakoski@retta.fi
Till bostadsbolaget hör
Bastu, tvättstuga
Bostadsbolagets bilplatser
  • Garageplatser: 10
Areal
5 685 m2
Tomt
Egen
Utförda renoveringar
1989 Takreparation
2000 Nya fönster och bakdörrar
2004 Förnyande av garagetak
2005 Renovering av byggnadernas gavlar
2007 Förnyande av kabeltvantennsystemet
2016 PermoVärme Ab har förnyat kulverten mellan bostadsbolaget och värmebolaget
2019 Fasadmålning
2023 Vattentaken ändrats till åstak samt tilläggsisolering av mellantaken
Planerade renoveringar
5-års underhållsplan 2024-2028:
Granskning av krypgrunderna
Granskning av bruksvattenrören
Energiklass
E2018
Läge
Visa på Google Maps
Kontakta oss

    Fyll i formuläret för mera information om detta objekt.