Grundrenoverat eh-hus på omtyckt område nära skolor, centrum och dagligvaruaffär!
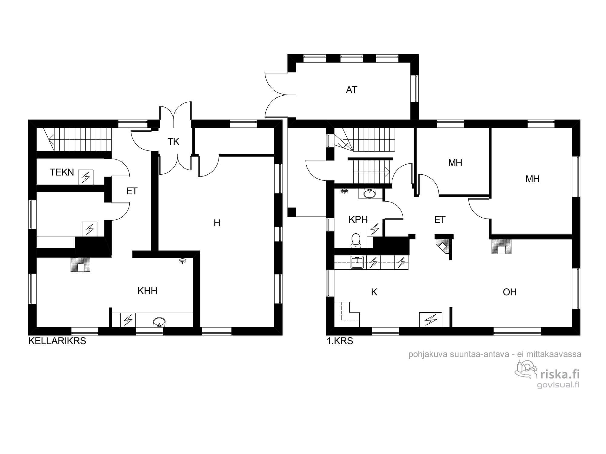
Gedigt byggt eh-hus som grundsanerats mellan 2009-2025, uppfört i 1-plan med inredd källarvåning och varmgarage i flygelbyggnad. Bostadsvåningen har 2 rymliga sovrum, kök och vardagsrum samt wc/bdr och tambur ca 85 m2. Källarvåningen, som blivit helsanerad 2015 har rymligt badrum/hjälpkök, omklädningsrum med braskamin, bastu, pannrum samt allrum som kan användas som familjens extra vardagsrum eller gästrum ca 85 m2.
Huset har både direkt elvärme, vattenburen golvvärme i källare och 3 st luftvärmepumpar som hjälper till att hålla inomhustemperaturen lagom varm eller kall, därtill finns Nunna-uuni lättspis i vardagsrum samt braskamin i källaren.
Egen tomt 770 m2 med rymlig innergård.
Fastighet på bra läge med de största och dyraste renoveringarna utförda!
- Objektsnummer
- 20563720
- Läge
- Kyrkostrand
- Länsmansstigen 7
- 68600 Jakobstad
- Typ
- Egnahemshus
- Rumsfördelning
- 3 r + k + bdr/wc + tvättrum/hjk + bastu + allrum + garage
- Rum
- 3 rum
- Bostadsyta
- 85 m2
- Totalyta
- 185 m2
- Mer information om ytan
- 1-vån: 3 r+k+bdr/wc+hall ca 85 m2
Källare: bdr/hjk, omklädningsrum, bastu, pannrum, allrum ca 85 m2
Flygelbyggnad: varmgarage ca 15 m2
- 1-vån: 3 r+k+bdr/wc+hall ca 85 m2
- Byggår
- 1952
- Frigörs
- Genast

- Försäljningspris
- 129 000 €
- Kvadratmeterpris
- 1 517,65 € / m2
- Fastighetsskatt
- 191,12 €/år
- Övriga avgifter
- Elförbrukning ca 14.400 kWh/år
- Bastu
- Egen bastu
- Ingår
- Besiktning har utförts
- Kondition
- Inte klassificerad
- Utförda renoveringar
- Grundrenoverat 2009-2024 (luftvärmepump, kök, bdr/wc, fönster, vatten-/avloppsanslutning, fasaden målad, elsanering, Nunna-spis, fiberanslutning, elbatterier, hjälpkök, källaren dränerad, bastu, allrum, ytrenoverat ym.)
- Energicertifikat
- Ej lagstadgat energicertifikat
- Uppvärmningssystem
- El, luftvärmepump
- Vattenförsörjning
- Kommunal
- Avlopp
- Kommunalt
- Elanslutning övergår
- Ja
- Tak
- Tak: Åstak
- Yttertak: Plåt
- Beskrivning av köket
- 2010
- Golvmaterial: Parkett
- Väggmaterial: Tapet
- Spis: Induktionsspis, separat ugn
- Utrustning: Kylskåp/frys - kombiskåp, Mikrovågsugn, diskmaskin
- Beskrivning av badrum
- Bdr/wc (2010), tvättrum/hjälpkök i källaren (2015)
- Golvmaterial: Klinker
- Väggmaterial: Kakel
- Utrustning: Duschvägg, tvättmaskinsanslutning, wc, spegel, integrerad armatur, badrumsskåp
- Beskrivning av bastu
- 2015
- Golvmaterial: Klinker
- Väggmaterial: Trä
- Beskrivning av vardagsrum
- Golvmaterial: Parkett
- Väggmaterial: Tapet
- Beskrivning av sovrum
- Golvmaterial: Laminat
- Väggmaterial: Tapet
- Ägandeform
- Egen
- Fastighetsregister
- 598-18-3-2
- Areal
- 770 m2
- Övriga byggnader
- Tältgarage, lekstuga och förrådsbyggnad (ca 10 m2)