Detta rymliga och välplanerade egnahemshus från 1975 erbjuder ca 134 m² boyta med generösa utrymmen för hela familjen – inklusive 4 rum, kök, matsal, nyrenoverat badrum/wc, bastu, wc, hjälpkök och hall. Dessutom finns garage och pannrum som ger en totalyta på ca 190 m².

Planlösningen är öppen och ljus, med en trivsam atmosfär som gör det enkelt att känna sig hemma. Det nyrenoverade badrummet ger en modern touch till huset.

Stor tomt på 1 350 m² med skyddad och grönskande bakgård – perfekt för barnlek, trädgårdsprojekt eller lugna stunder i solen. Läget är utmärkt: nära skolor, daghem, butik och fritidsaktiviteter.

Genast ledig!

Basuppgifter
Objektsnummer
21596249
Läge
  • Baggholmen
  • Fiskebäcksvägen 22
  • 68630 Jakobstad
Typ
Egnahemshus
Rumsfördelning
4 r + k + matplats + bdr/wc/b + wc + hjk + garage
Rum
4 rum
Bostadsyta
134 m2
Totalyta
190 m2
Mer information om ytan
  • 4 r+k+matplats+bdr/wc/bastu+wc+hjk ca 134 m2 + garage och pannrum, totalt ca 190 m2
Byggår
1975
Frigörs
Enligt överenskommelse
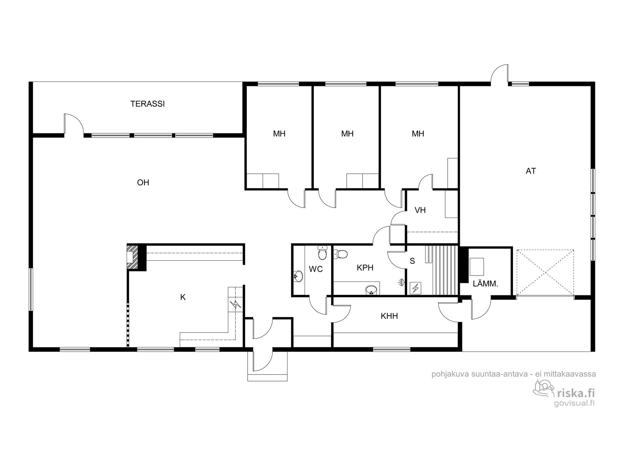
Planritning
Planritning
Pris och kostnader
Försäljningspris
58 500 €
Kvadratmeterpris
436,57 € / m2
Tilläggsuppgifter
Bastu
  • Egen bastu
Kondition
Inte klassificerad
Energicertifikat
Ej lagstadgat energicertifikat
Uppvärmningssystem
Olja
Vattenförsörjning
Kommunal
Avlopp
Kommunalt
Elanslutning övergår
Ja
Utrymmen och material
Byggnads- och ytmaterial
  • Huvudsakliga byggnadsmaterial: Trä, tegel
Tak
  • Tak: Åstak
Beskrivning av köket
  • Golvmaterial: Kork
  • Väggmaterial: Tapet
  • Spis: Elspis
  • Utrustning: Kylskåp, Spisfläkt, diskmaskin
Beskrivning av badrum
  • Uusittu
  • Golvmaterial: Plast
  • Väggmaterial: Kakel
  • Utrustning: Duschskåp, tvättmaskinsanslutning, wc, integrerad armatur
Beskrivning av WC
  • Golvmaterial: Plast
  • Väggmaterial: Tapet
Beskrivning av bastu
  • Golvmaterial: Plast
  • Väggmaterial: Trä
Beskrivning av klädvårdsrum
  • Golvmaterial: Plast
  • Väggmaterial: Tapet
  • Direkt utgång
Beskrivning av vardagsrum
  • Golvmaterial: Parkett
  • Väggmaterial: Tapet
Beskrivning av sovrum
  • Golvmaterial: Plast
  • Väggmaterial: Tapet
Tomt
Ägandeform
Arrende
Tomtens hyra
950 € / year
Hyresvärd
Staden Jakobstad
Fastighetsregister
598-30-13-2-L1
Areal
1 350 m2
Läge
Visa på Google Maps
Kontakta oss

    Fyll i formuläret för mera information om detta objekt.