Välkommen till detta välplanerade Jeo-hus på lugnt och naturnära läge, 200 meter från Killingholmens båthamn och simstrand.

Detta effektivt planerade Jeo-elementhus är byggt 1994/95 och erbjuder en välplanerad boyta på 120 m2 som innefattar 4 sovrum, vardagsrum med förhöjt innertak som bjuder på ljus och rymd, rymligt kök och invid ett hjälpkök samt badrum och bastu. Efter bastun kan man svalka sig på den takförsedda terrassen som vätter mot skyddad bakgårdsplan. Biltak, rymligt varmt garage ca 27 m2 och förrådsrum ca 10 m2.

Tomten är ca 1.300 m2 stor och har planteringar och stensättningar. Från bakgården har man direkt tillgång till gång-/friluftsled som naturskönt slingrar sig genom Killingholmens bostadskvarter. Välskött hus på lugnt och naturskönt läge. Begär visning!

Basuppgifter
Objektsnummer
21170840
Läge
  • Killingholmen
  • Linneavägen 4
  • 68600 Jakobstad
Typ
Egnahemshus
Rumsfördelning
5 r + k + bdr/b/wc + hjk + wc + garage
Rum
5 rum
Bostadsyta
120 m2
Totalyta
174 m2
Mer information om ytan
  • 4 svr+vdr+kök+bdr/bastu/wc+hjk+wc, 120 m2 + garage, förråd, 37,1 m2
    Byggnadsyta 174 m2
Byggår
1995
Frigörs
Enligt överenskommelse
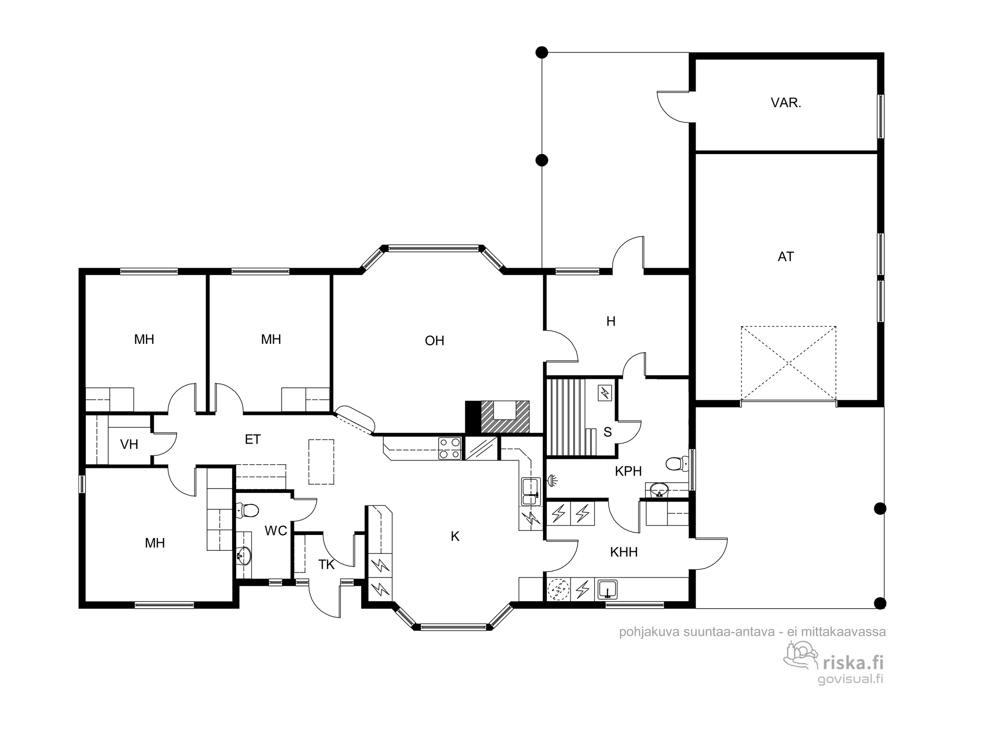
Planritning
Planritning
Pris och kostnader
Försäljningspris
145 000 €
Kvadratmeterpris
1 208,33 € / m2
Fastighetsskatt
457,64 €/år
Tilläggsuppgifter
Bastu
  • Egen bastu
Ingår
Kabel-tv, besiktning har utförts
Kondition
Inte klassificerad
Energicertifikat
Ej lagstadgat energicertifikat
Uppvärmningssystem
El
Vattenförsörjning
Kommunal
Avlopp
Kommunalt
Elanslutning övergår
Ja
Utrymmen och material
Byggnads- och ytmaterial
  • Huvudsakliga byggnadsmaterial: Trä
  • Byggnadsmaterial: JEO-elementhus
Tak
  • Tak: Åstak
  • Yttertak: Tegel
Beskrivning av köket
  • Golvmaterial: Parkett
  • Väggmaterial: Tapet
  • Spis: Keramisk spis
  • Utrustning: Kylskåp, frys, Spisfläkt, diskmaskin
Beskrivning av badrum
  • Golvmaterial: Klinker
  • Väggmaterial: Kakel
  • Utrustning: Golvvärme, wc, dusch, spegelskåp
Beskrivning av WC
  • Golvmaterial: Klinker
  • Väggmaterial: Kakel
  • Utrustning: Spegelskåp
Beskrivning av bastu
  • Golvmaterial: Klinker
  • Väggmaterial: Trä
Beskrivning av klädvårdsrum
  • Golvmaterial: Klinker
  • Väggmaterial: Tapet
  • Utrustning: Tvättmaskinsanslutning, golvvärme, bänk
  • Direkt utgång
Beskrivning av vardagsrum
  • Golvmaterial: Parkett
  • Väggmaterial: Tapet
Beskrivning av sovrum
  • Golvmaterial: Laminat
  • Väggmaterial: Tapet
Tomt
Ägandeform
Arrende
Tomtens hyra
399,28 € / year
Hyresvärd
Staden Jakobstad
Fastighetsregister
598-39-11-2-L1
Areal
1 300 m2
Läge
Visa på Google Maps
Kontakta oss

    Fyll i formuläret för mera information om detta objekt.