Välskött enplanshus på centralt och lugnt läge i Kållby!

I centrala Kållby, i ett lugnt och trivsamt bostadsområde med närhet till skola och dagligvaruaffär, erbjuds detta omsorgsfullt underhållna enplanshus. Huset är uppförd 1976/77 och omfattar 5 rum och kök, samt wc och badrum med bastu ca 118/140 m². Planlösningen är funktionell och lämpar sig väl för såväl familjeboende som för den som önskar ett bekvämt boende i ett plan.

Huset är välskött och viktiga renoveringar såsom bergvärme installerades 2019, vilket bidrar till låga uppvärmnings- och driftkostnader. Badrummet och köket renoverades 2003 och därefter har ytrenoveringar utförts, liksom renovering av wc. Till fastigheten hör garage med förråd om ca 29/34 m².

Den egna tomten om 1 327 m² är välskött och smakfullt anlagd med planteringar och stensättningar. Ett trivsamt och välvårdat hus i ett omtyckt område med goda vardagsförbindelser.

Konditionsgranskning utförd!

Basuppgifter
Objektsnummer
20324632
Läge
  • Kållby
  • Brogatan 10
  • 68800 Kållby
Typ
Egnahemshus
Rumsfördelning
5 r + k + bdr/b + wc + garage
Rum
5 rum
Bostadsyta
118 m2
Totalyta
153 m2
Mer information om ytan
  • 5 r+k+bdr/bastu+wc, 118/140 m2
    + garage och förråd, 29/35 m2
Byggår
1976
Frigörs
Enligt överenskommelse
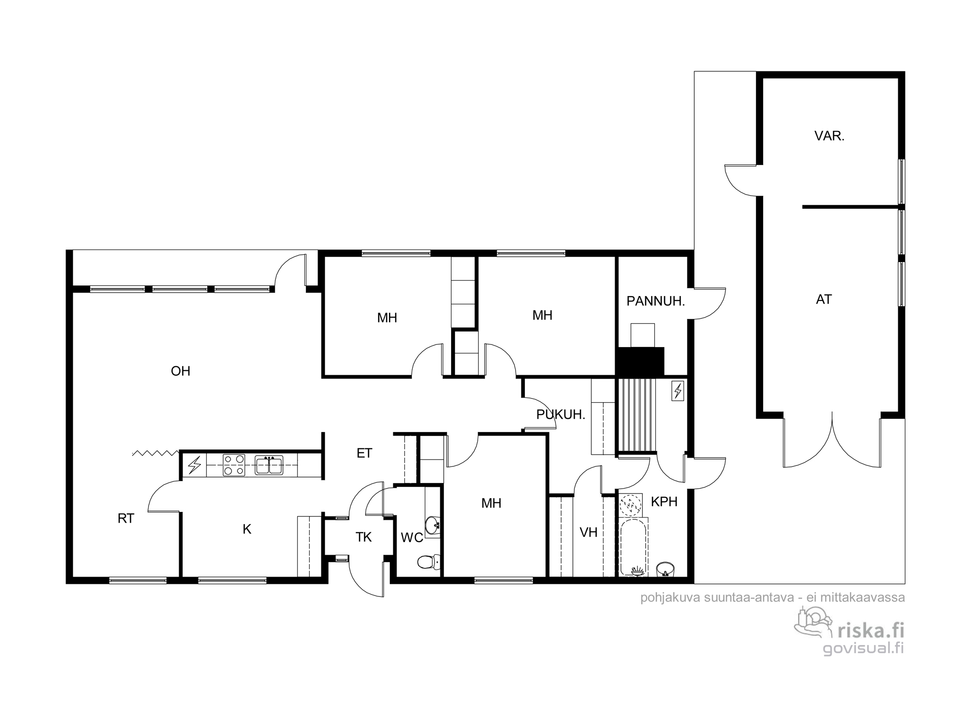
Planritning
Planritning
Pris och kostnader
Försäljningspris
109 000 €
Kvadratmeterpris
923,73 € / m2
Fastighetsskatt
254 €/år
Övriga avgifter
  • Elförbrukning ca 5.800-6.000 kwh/år
Tilläggsuppgifter
Bastu
  • Egen bastu
Ingår
Kabel-tv, besiktning har utförts
Kondition
Inte klassificerad
Utförda renoveringar
Värmeglasen förnyade på 1990-talet.
2003 Badrum och bastu
2007 Wc renoverat
2015 Regnvattensystem
2019 Bergvärme
Energicertifikat
Ej lagstadgat energicertifikat
Uppvärmningssystem
Jordvärme
Vattenförsörjning
Kommunal
Avlopp
Kommunalt
Elanslutning övergår
Ja
Utrymmen och material
Byggnads- och ytmaterial
  • Huvudsakliga byggnadsmaterial: Trä, tegel
  • Byggnadsmaterial: Gjuten betonggrund, spirade väggar, tegelfasad, åstak med filtbeklädnad
Tak
  • Tak: Åstak
  • Yttertak: Filt
Beskrivning av köket
  • Ek-kök, Mobalpa.
  • Golvmaterial: Laminat
  • Väggmaterial: Tapet
  • Spis: Keramisk spis, separat ugn
  • Utrustning: Kylskåp/frys - kombiskåp, Mikrovågsugn, diskmaskin
Beskrivning av badrum
  • Förnyat ca 2003.
  • Golvmaterial: Klinker
  • Väggmaterial: Kakel
  • Utrustning: Tvättmaskinsanslutning, wc, dusch, spegelskåp, spegel
Beskrivning av WC
  • Förnyat ca 2007.
  • Golvmaterial: Klinker
  • Väggmaterial: Kakel
Beskrivning av bastu
  • Förnyat ca 2003.
  • Golvmaterial: Klinker
  • Väggmaterial: Trä
Beskrivning av vardagsrum
  • Golvmaterial: Laminat
  • Väggmaterial: Tapet
Beskrivning av sovrum
  • Golvmaterial: Laminat
  • Väggmaterial: Tapet
Tomt
Ägandeform
Egen
Fastighetsregister
599-407-3-51
Areal
1 327 m2
Byggrätt e=
0.2
Stadsplanering
AO I
Läge
Visa på Google Maps
Kontakta oss

    Fyll i formuläret för mera information om detta objekt.