Strandnära boende på populärt bostadsområde, endast ett stenkast från Furuholmens båthamn!

Rymligt och välhållet egnahemshus i ett plan omfattande 6rum+kök+bdr+b+2wc+hjk samt garage och förråd. Huset är ett Prefab elementhus uppfört 1981/1982 och har en bostadsyta på ca 154 m2. Uppvärmningen sker med direktverkande el ackumulerande spis och luftvärmepump.

Egen 1.500 m2 stor tomt med gott om utrymme för barnens lekar och många möjligheter för den trädgårdsintresserade. Ytrenoveringar har utförts i huset 2014, köket och wc:n har blivit förnyade 2015, då även luftvärmepump installerats. 2024 har varmvattenberedaren förnyats, taket tvättats och fasaden målats.

Välhållen helhet på bra läge med korta avstånd till mångsidig service. Passar utmärkt för en barnfamilj! Ta kontakt och boka er visning!

Basuppgifter
Objektsnummer
21154252
Läge
  • Furuholmen
  • Ängsvägen 2
  • 68580 Larsmo
Typ
Egnahemshus
Rumsfördelning
6 r + k + bdr/b + wc + hjk + garage
Rum
6 rum eller mera
Bostadsyta
154 m2
Totalyta
215 m2
Mer information om ytan
  • 6 r+k+bdr/bastu+wc+hjk
    +förrådsutrymme+garage
    Totalt ca 154/215 m2
Byggår
1982
Frigörs
Enligt överenskommelse
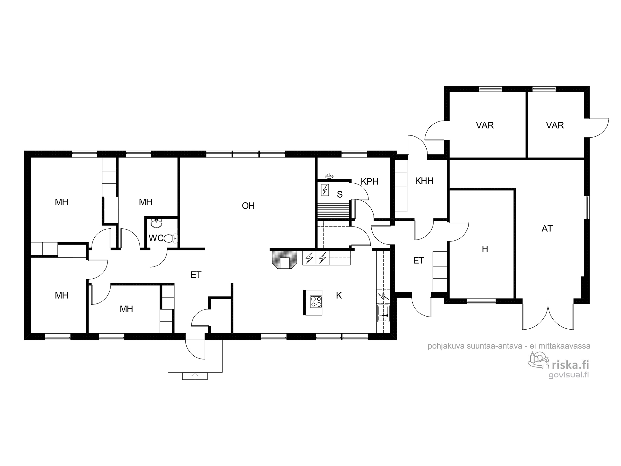
Planritning
Planritning
Pris och kostnader
Försäljningspris
154 000 €
Kvadratmeterpris
1 000 € / m2
Fastighetsskatt
ca 240 €/år
Övriga avgifter
  • Elförbrukning (5 pers)
    2022 ca 21.000 kWh
    2023 ca 24.000 kWh
    2024 ca 21.000 kWh
    2025 ca 22.000 kWh
Tilläggsuppgifter
Bastu
  • Egen bastu
Ingår
Kabel-tv
Kondition
Inte klassificerad
Utförda renoveringar
2014 Ytrenoverat
2015 Köket förnyat
2015 Wc förnyat
2015 Installerat luftvärmepump
2024 Varmvattenberedaren förnyad,
2024 Taket tvättat
2024 Fasaden målad
Energicertifikat
Ej lagstadgat energicertifikat
Uppvärmningssystem
Ved, el, luftvärmepump
Vattenförsörjning
Kommunal
Avlopp
Kommunalt
Elanslutning övergår
Ja
Utrymmen och material
Byggnads- och ytmaterial
  • Huvudsakliga byggnadsmaterial: Element
  • Byggnadsmaterial: Prefab-elementhus
Tak
  • Tak: Åstak
  • Yttertak: Tegel
Beskrivning av köket
  • Nytt kök 2015
  • Golvmaterial: Parkett
  • Väggmaterial: Annat
  • Spis: Induktionsspis, separat ugn
  • Utrustning: Kylskåp, frys, Spisfläkt, mikrovågsugn, diskmaskin, fristående skåp
Beskrivning av badrum
  • Golvmaterial: Plast
  • Väggmaterial: Kakel
  • Utrustning: Tvättmaskinsanslutning, golvvärme, wc, spegel, integrerad armatur, badrumsskåp
Beskrivning av WC
  • Förnyat 2015
  • Golvmaterial: Klinker
  • Väggmaterial: Trä
Beskrivning av bastu
  • Golvmaterial: Plast
  • Väggmaterial: Trä
Beskrivning av klädvårdsrum
  • Golvmaterial: Plast
  • Väggmaterial: Kakel
  • Direkt utgång
Beskrivning av vardagsrum
  • Golvmaterial: Parkett
  • Väggmaterial: Tapet
Beskrivning av sovrum
  • Golvmaterial: Parkett, annat
  • Väggmaterial: Tapet
Tomt
Ägandeform
Egen
Fastighetsregister
440-402-3-108
Areal
1 505 m2
Läge
Visa på Google Maps
Kontakta oss

    Fyll i formuläret för mera information om detta objekt.