Ny, högklassig radhuslägenhet på Korsgrundet till försäljning! Bostaden planeras vara färdigställd våren/försommaren 2026.

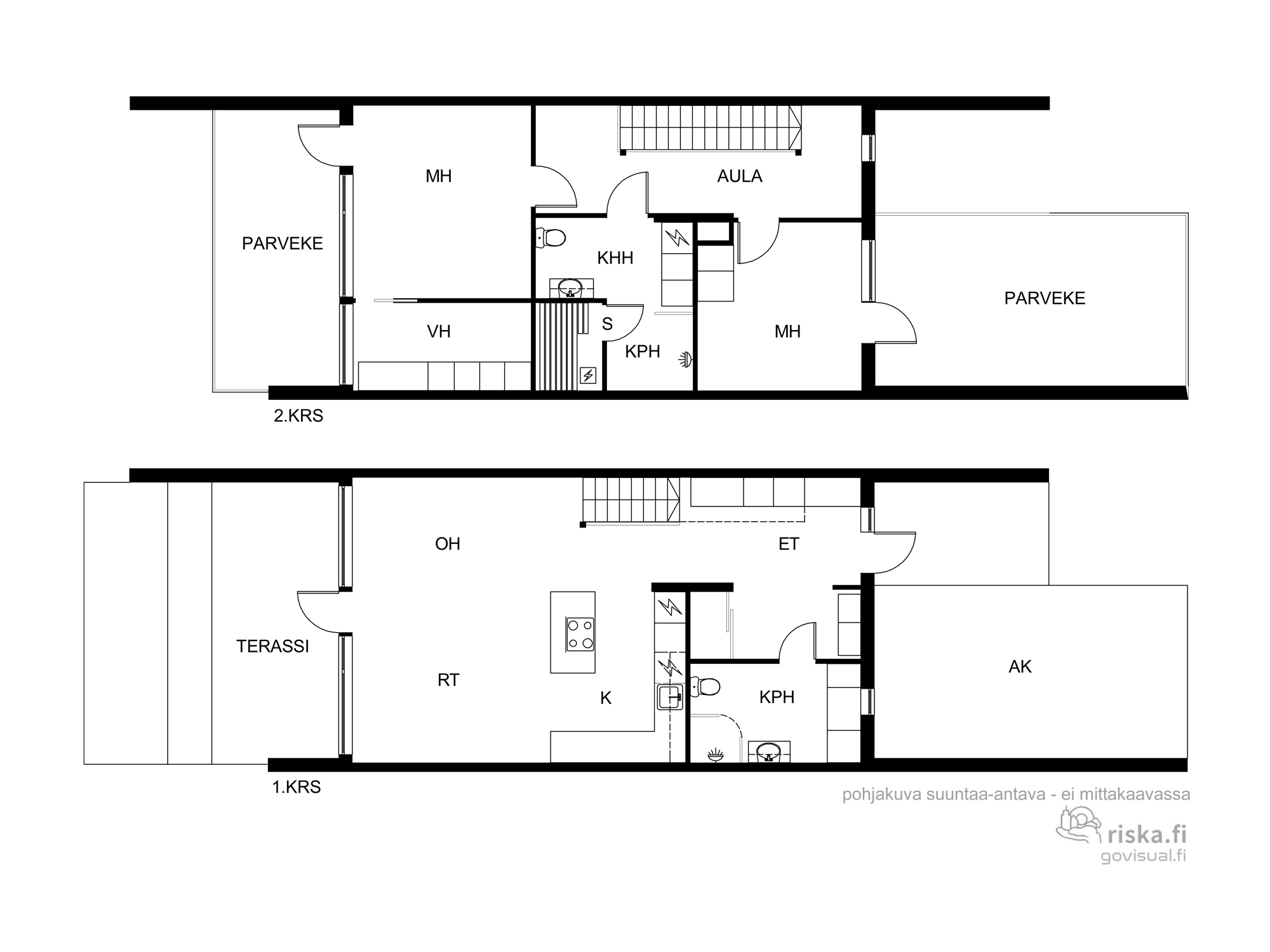
Bostaden omfattar 3 r+kök+2 bdr/wc, bastu 102 m2 + rymlig inglasad terrass och balkong med glasräcke mot söder. På bostadens norra sida finns en stor inglasad terras med härligt ute utrymme och kvällssol. Bilplats med motorvärmaruttag invid bostaden samt ett separat rymligt garage och förråd. Välplanerade, moderna bostäder med satsning på hög boendekomfort och högklassig inredningsstandard.

Radhusen byggs i betongelement med målad betongyta. Uppvärmningen sker med bergvärme (vattenburen golvvärme). Varje bostad förses med separata ventilationsaggregat med värmeåtervinning samt komfortkylning i både våning 1 och 2, egna vattenmätare och fiberanslutning. Garagen och förråden förses också med vattenburen golvvärme från bergvärmesystemet. Yttre tomt områden förses med planteringar och plattsättningar, gräsmatta med robotklippare. Infart och gångväg förses med asfalt och betongplattor samt kantstenar mot gräsmattor.

Ta tillfället i akt, motsvarande bostäder på detta attraktiva strandläge utbjuds sällan med kombinerat boende och fritidsboende!

Basuppgifter
Objektsnummer
20570739
Läge
  • Korsgrundet
  • Equatorn 4 C
  • 68600 Jakobstad
Typ
Radhus
Ägandeform
Egen
Rumsfördelning
3 r + k + 2 bdr/wc + bastu
Rum
3 rum
Bostadsyta
102 m2
Mer information om ytan
  • Autotalli+varasto, 19,5 m2 + 6,5 m2
Våningar
2
Byggår
2026
Frigörs
Enligt överenskommelse
Planritning
Planritning
Pris och kostnader
Skuldfritt pris
  • 487 500 €
  • (Försäljningspris 195 000 € + Skuldandel 292 500 €)
Försäljningspris
195 000 €
Skuldandel
292 500 €
Kvadratmeterpris
4 779,41 € / m2
Tilläggsuppgifter
Bastu
  • Egen bastu
Balkong
  • Väderstreck: Norrut, Söderut
  • Typ av balkong: Inglasad
Kondition
Ny
Uppvärmningssystem
Annat
Utrymmen och material
Byggnads- och ytmaterial
  • Huvudsakliga byggnadsmaterial: Betong
Tak
  • Yttertak: Filt
Beskrivning av köket
  • Huusholli-kök, integrerade Bosch-köksmaskiner.
  • Golvmaterial: Parkett
  • Väggmaterial: Målad
  • Köksbänk: Laminat
  • Spis: Induktionsspis, separat ugn
  • Utrustning: Kylskåp, frysskåp, Spisfläkt, diskmaskin, fristående köksö
Beskrivning av badrum
  • 2 x bdr, Huusholli-inredning
  • Golvmaterial: Klinker
  • Väggmaterial: Kakel
  • Utrustning: Tvättmaskinsanslutning, wc, dusch, spegelskåp, spegel, integrerad armatur, badrumsskåp
Beskrivning av bastu
  • Bastun finns på andra våningen. Harvia bastu-ugn med styrreglage utanför bastun.
  • Golvmaterial: Klinker
  • Väggmaterial: Trä
Beskrivning av vardagsrum
  • Golvmaterial: Parkett
  • Väggmaterial: Målad
Beskrivning av sovrum
  • På övervåningen finns ett rymligt klädförråd i anslutning till det största sovrummet samt en balkong på cirka 13 m². Från det andra sovrummet på övervåningen utgång till stor inglasad terrassbalkong på cirka 20 m².
  • Golvmaterial: Parkett
  • Väggmaterial: Målad
Övrig information
Utsikt
Inglasad terrass och balkong med glasräcke mot söder. På bostadens norra sida finns en stor inglasad terrass mot kvällssol.
Bostadsbolag
Bostadsbolagets namn
Bostads Ab KR Marina Asunto Oy
Tomt
Egen
Energiklass
A2018
Läge
Visa på Google Maps
Kontakta oss

    Fyll i formuläret för mera information om detta objekt.