Förmånligt hus på omtyckt läge i Vestanpå!

Huset är ursprungligen byggts 1929 men ombyggts 1960-talet och delvist grundsanerats på 1980-talet. Huset omfattar 2-3 r+k+wc+bdr ca 75 m2 i 1-våningen och 2 r+k+alkov+wc och badrum på vindsvåningen ca 45 m2. Husets nedre våning och delvist vindsvåning har renoverats 1985-1986, plåttaket förnyats 1998 och husets värmesystem har förnyats 2006, därtill har luftvärmepump installerats 2008 och i vardagsrummet finns en vedspis.

Uthusbyggnad ca 35/40 m2 med kallgarage, förråd och pannrum. Arrendetomt 485 m2. Möjligheternas fastighet på bra läge!

Basuppgifter
Objektsnummer
20585259
Läge
  • Västanpå
  • Centralvägen 17
  • 68620 Jakobstad
Typ
Egnahemshus
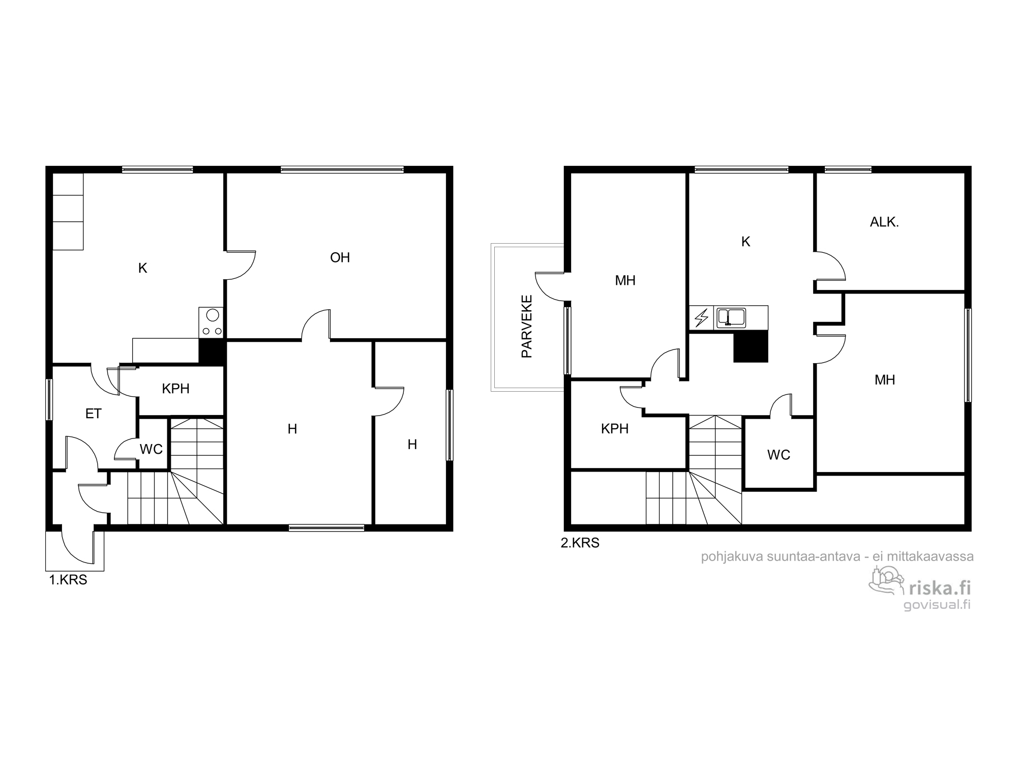
Rumsfördelning
5 r + 2 k + 2 wc + 2 bdr
Rum
5 rum
Bostadsyta
120 m2
Totalyta
120 m2
Mer information om ytan
  • 1-vån: 3 r+k+wc+bdr ca 75 m2
    2-vån: 3 svr+k+wc+bdr ca 45 m2
Byggår
1929
Frigörs
Enligt överenskommelse
Planritning
Planritning
Pris och kostnader
Försäljningspris
49 500 €
Kvadratmeterpris
412,50 € / m2
Fastighetsskatt
176,21 €/år
Tilläggsuppgifter
Ingår
Besiktning har utförts
Kondition
Inte klassificerad
Utförda renoveringar
Nedre våningen och övre våningen delvis renoverad 1985-1986, golv, tilläggsisolering, brädfasad delvis förnyade.
1998 Plåttak, fönster delvis, ytterdörr.
2006 Värmecentral
2008 Luftvärmepump, nedre vån duschrum renoverad
Uppvärmningssystem
Olja, luftvärmepump
Vattenförsörjning
Kommunal
Avlopp
Kommunalt
Elanslutning övergår
Ja
Utrymmen och material
Tak
  • Tak: Åstak
  • Yttertak: Plåt
Beskrivning av köket
  • Köksskåp 1985/1986 (nedre vån)
  • Golvmaterial: Plast
  • Väggmaterial: Tapet
  • Spis: Elspis
  • Utrustning: Kylskåp/frys - kombiskåp, Spisfläkt / rökkanal
Beskrivning av badrum
  • 2 x bdr
  • Golvmaterial: Plast
  • Väggmaterial: Plast
  • Utrustning: Badkar, tvättmaskinsanslutning, dusch
Beskrivning av WC
  • 2 x wc
  • Golvmaterial: Plast
  • Väggmaterial: Plast
Beskrivning av vardagsrum
  • Golvmaterial: Plast
  • Väggmaterial: Tapet
Beskrivning av sovrum
  • Golvmaterial: Plast
  • Väggmaterial: Tapet
Tomt
Ägandeform
Arrende
Tomtens hyra
449,94 € / year
Hyresvärd
Staden Jakobstad
Fastighetsregister
598-9-8-5-L1
Areal
485 m2
Övriga byggnader
Uthusbyggnad, 35/40 m2, med kallgarage, förråd och pannrum.
Läge
Visa på Google Maps
Kontakta oss

    Fyll i formuläret för mera information om detta objekt.